Eigenes Haus von Josef Polášek

C014
více fotografií (27)

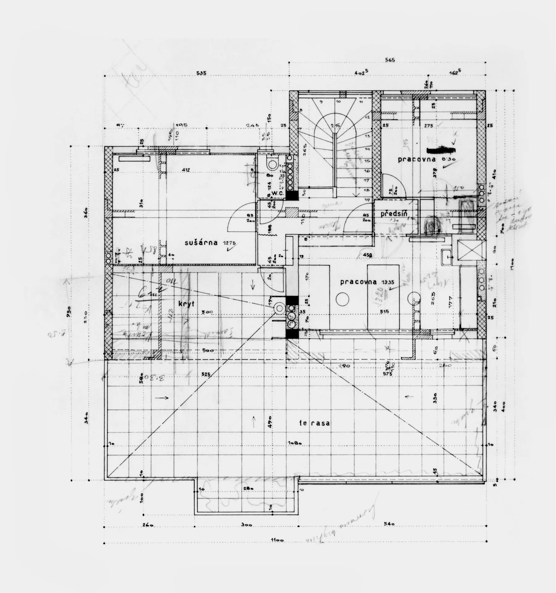
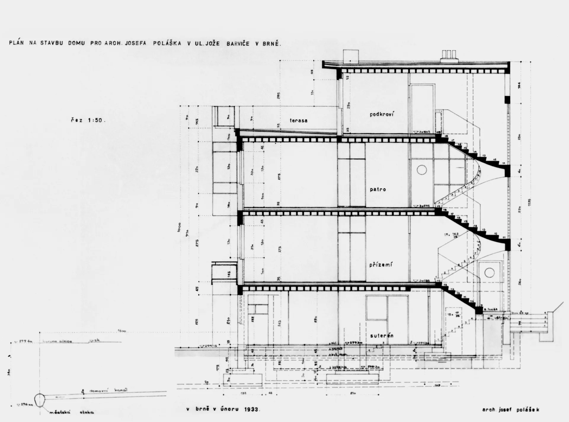
Anfang der 30er Jahre blühte Polášeks Karriere vielversprechend auf und der Architekt konnte es sich leisten, sein eigenes Wohnhaus in der Barvičova Straße zu bauen. Das vierstöckige Haus, das zwei Wohneinheiten und Polášeks Architekturatelier umfasst, wurde 1933 hier erbaut. Auch dieser Bau verrät Polášeks Intention von minimalistischer ästhetischer Wirkung in der Architektur. Die Straßenfassade ist durch horizontale Fensterbänder strukturiert. Die Horizontalität akzentuiert auch der Balkon über die ganze Breite des ersten Stockes. Aus dem Baukörper tritt im zweiten Stock nur der Kubus des Erkers heraus; der zurückgesetzte dritte Stock wird teilweise als Terrasse genutzt. An der Rückfassade dominiert dagegen die Vertikale des Risalits mit Bandfenstern und größeren Flächen aus Glasformstücken, hinter denen sich die Treppe verbirgt. Von Fotos aus der Zeit kennen wir auch die ursprüngliche sehr moderne und praktische Innenausstattung des Hauses, die nach einem gemeinsamen Entwurf von Polášek und dem Wohndesigner Jindřich Halabala entstand. Nach dem frühen Tod von Josef Polášek im Jahre 1946 erbten seine Ehefrau und seine zwei Söhne, die im Jahre 1969 in die Republik Südafrika emigrierten das Haus. Es wurde zum Teil konfisziert. Ganz beschlagnahmt wurde es dann im Jahre 1980, als nach den Söhnen auch Polášeks Witwe Anka auszog. Polášeks Erben baten 1992 um die Restitution der Villa; sie wurde ihnen jedoch erst nach langen Gerichtsverhandlungen aufgrund der Entscheidung des Höchsten Gerichts im Jahre 2005 zurückgegeben. Das Haus, das seit seiner Konfiskation baufällig wurde, ist vor kurzem sensibel rekonstruiert worden und dient heute als Sitz des Ukrainischen Konsulats.

Name
Eigenes Haus von Josef Polášek

Architekt
Josef Polášek

Kode
C014

Typ
Villa, Einfamilienhaus

Adresa
Barvičova 47/56, Brno

Öffentlicher Verkehr
Kampelíkova (TROL 35, 39)
Neumannova (TROL 38)
Heinrichova (TRAM 4)


GPS
49.198066,16.580818

Literatur
Petr Pelčák, Ivan Wahla. Josef Polášek 1899–1946. Brno, Obecní dům Brno, 2004.
Zdeněk Kudělka, Jindřich Chatrný. O Nové Brno. Brněnská architektura 1919-1939. Brno, Muzeum města Brna, 2000.
Rostislav Švácha. Josef Polášek. Domov. 1986. XXVI, 1. s. 3.
Jan Sedlák. Slavné brněnské vily. Praha, Foibos, 2006.