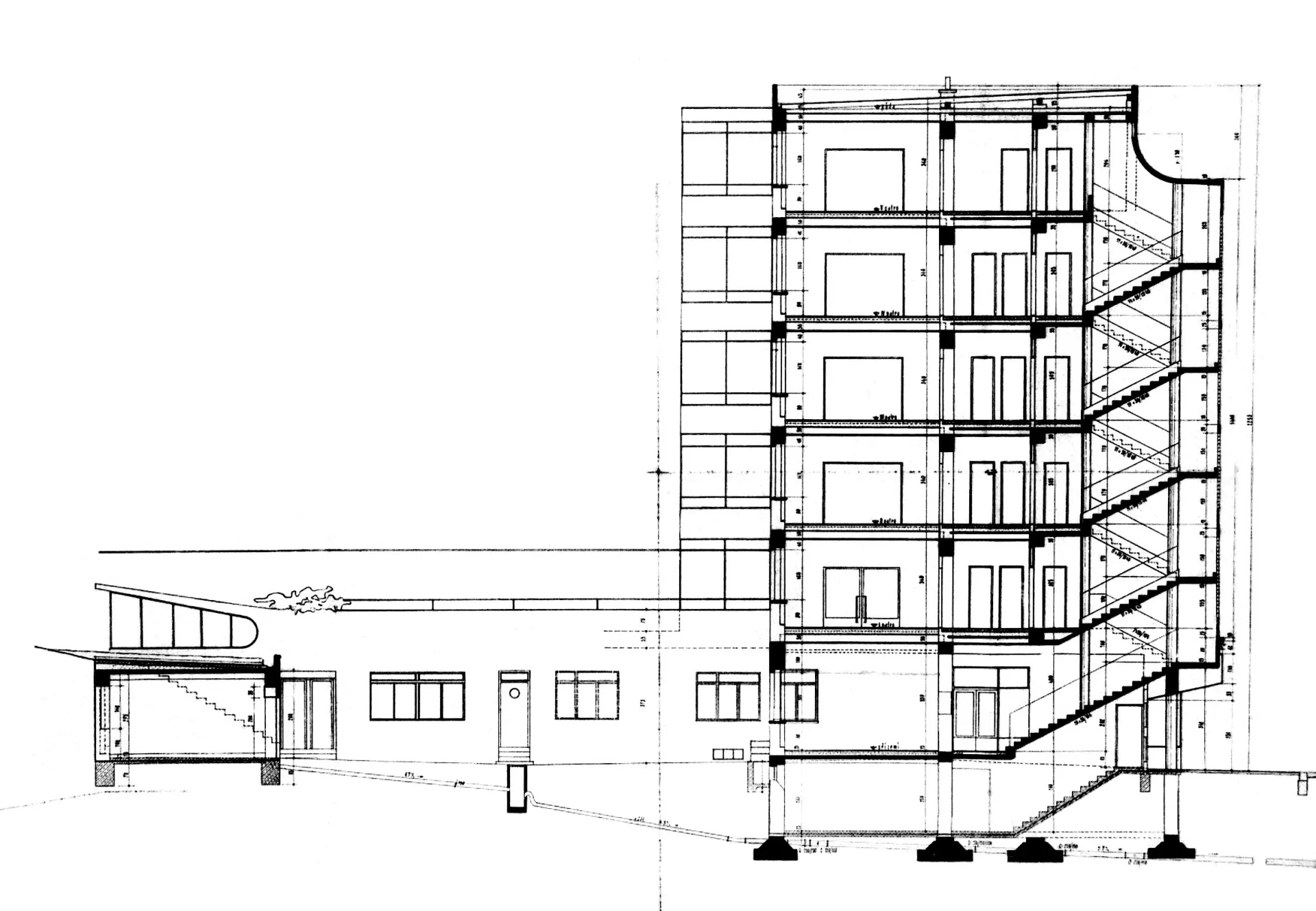
Der Dozent der Brünner Medizinischen Fakultät Karel Pur (1898–1947) beschloss Mitte der 1930er, sein Haus und seine Privatordination zu modernisieren. Den ursprünglich zweigeschoßigen Bau in der Straße Údolní mit zwei Hofflügeln ließ er abreißen und nach einem Projekt des Brünner Architekten Josef Polášek an dessen Stelle 1937 ein neues Haus errichten, das den Anforderungen an modernes Wohnen besser entsprach, wobei darin auch Geschäftsräumlichkeiten und eine Arztpraxis untergebracht waren. Das sechsgeschößige Mietshaus ragt nicht nur hinsichtlich Höhe, sondern vor allem durch seine Form aus der umliegenden historisierenden Verbauung der Straße Údolní ulice heraus. Die gegliederte Fassade wird vom Stiegenhausrisalit mit runden Glasbausteinen in der Mitte, die ein charakteristisches Element in Polášeks Schaffen ab der zweiten Hälfte der 1930er sind, dominiert. Der Körper des Stiegenhauses wird von beiden Seiten mit Loggien gesäumt, das letzte nach hinten gerückte Stockwerk bildet einen Raum für die Terrasse. Im Erdgeschoß, das mit Travertin verkleidet ist, sind die zwei untereinander angebrachten Rundfenster, die den privaten Haupteingang und die Einfahrt in den Hof voneinander trennen, ein Blickfang, und an den Rändern befinden sich die Schaufenster zweier kleiner Geschäfte. Die rückwärtige Fassade des Hauses ist nur durch zusammengefasste Fenster und den Risalit mit den Wintergärten der Wohnungen gegliedert. Im Erdgschoß befand sich außer den kommerziellen Räumlichkeiten die Wohnung des Hausmeisters und die modern ausgestattete Arztpraxis von Dr. med. Pur samt Wartezimmer, Labor und Röntgen; sie bildete den in den Hof gehenden Erdgeschoßflügel. Dieser wurde auch vom anschließenden Baukörper der Garagen und der Lager begrenzt. Interessant gelöst wurde der Eingang in den höher gelegenen abschüssigen Garten, der von einem verglasten Windfang mit schräger Markise gebildet wird; dieser Garten schließt an die Terrasse der Wohnung von Karel Pur, die sich über den Räumlichkeiten der Ordination befand, an. Die weitläufige Wohnung des Eigentümers lag aufgrund des abschüssigen Areals auf dieser Seite im Hochparterre und umfasste eine längliche zentrale Halle, die die Betriebsräumlichkeiten zur Straße hin und die zur Wohnung gehörenden Zimmer mit einem Wintergarten und den Zugang zur Terrasse und in den Garten voneinander trennte. Eine ähnliche Disposition und Ausstattung mit Polášeks Einbaumöbeln wiesen auch die Luxuswohnungen in den höheren Stockwerken auf. Das Objekt wurde während des Zweiten Weltkrieges bei Bombenangriffen teilweise beschädigt. Zur Zeit des Kommunismus wurden die Wohnungen, die bis zu 5 Zimmer umfassten, jeweils auf zwei Einheiten aufgeteilt. Heute steht das Haus wieder im Eigentum der Familie von Karel Pur, die es renovieren ließ. Die ursprünglichen Fenster der Hoffassade wurden zwar gegen Plastikfenster ausgetauscht, aber zahlreiche ursprüngliche Details des Interieurs und der Hausfassade sind erhalten geblieben.
Mietshaus von Dr. Karel Pur
Name
Mietshaus von Dr. Karel Pur
Architekt
Josef Polášek
Kode
C128
Typ
Mehrfamilienhaus
Adresa
Údolní 528/25,
Brno
Öffentlicher Verkehr
Komenského náměstí (TRAM 4)
Obilní trh (TRAM 4)
GPS
49.197277,16.599777
Literatur
Petr Pelčák, Ivan Wahla. Josef Polášek 1899–1946. Brno, Obecní dům Brno, 2004.
Zdeněk Kudělka, Jindřich Chatrný. O Nové Brno. Brněnská architektura 1919-1939. Brno, Muzeum města Brna, 2000.
Rostislav Švácha. Josef Polášek. Domov. 1986. XXVI, 1. s. 3.