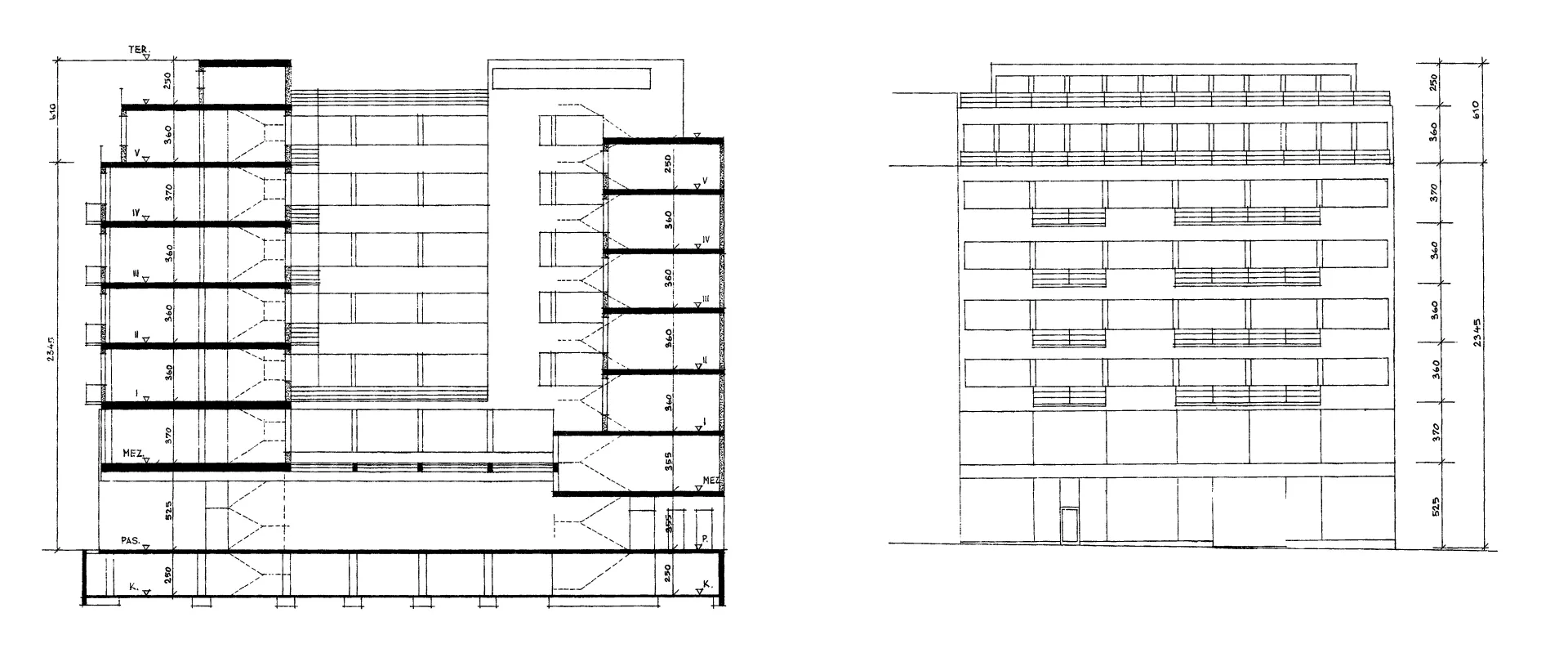
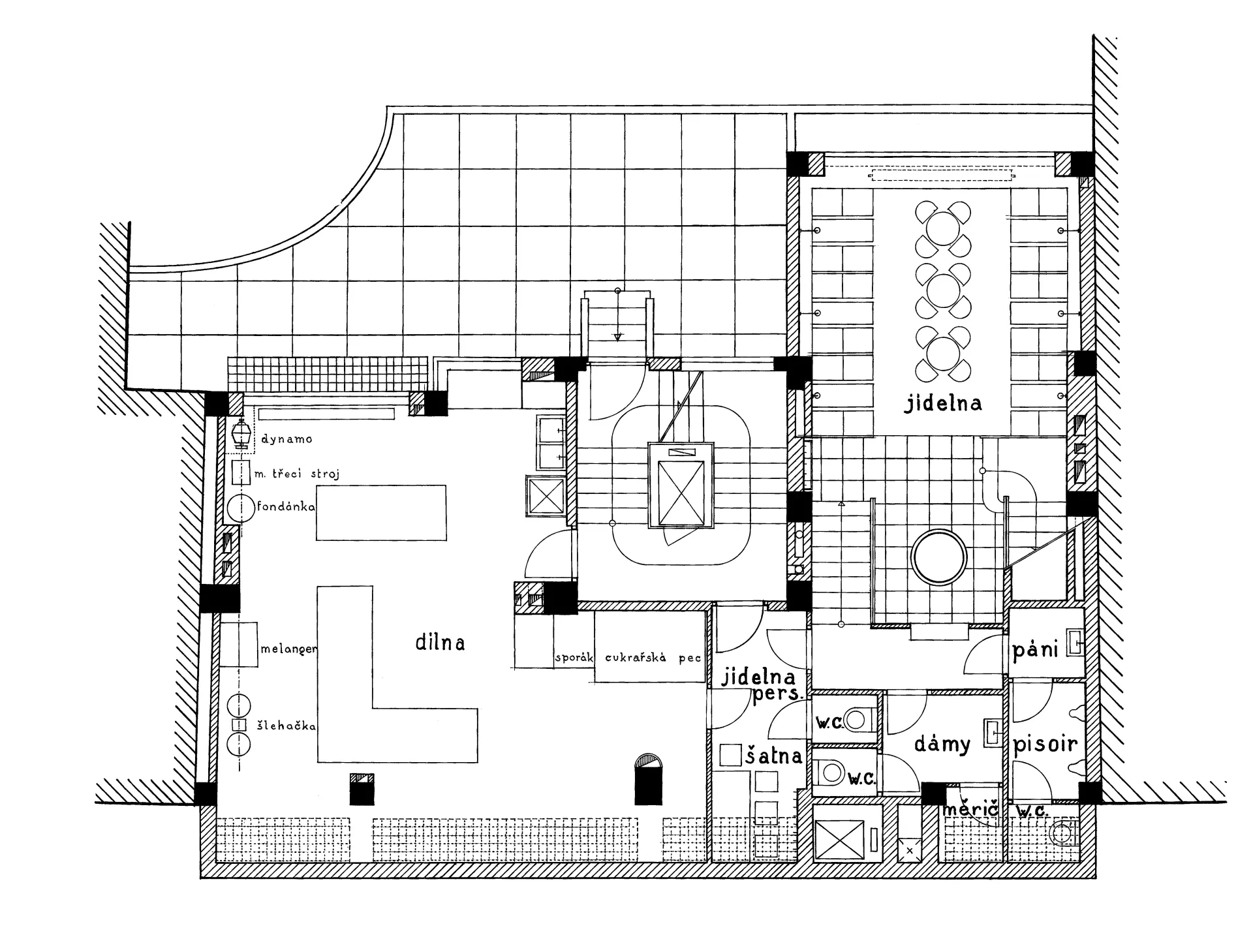
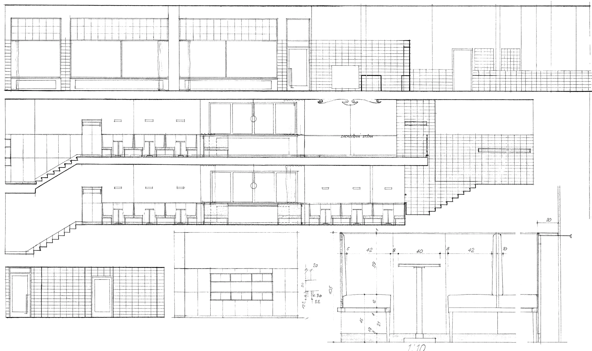
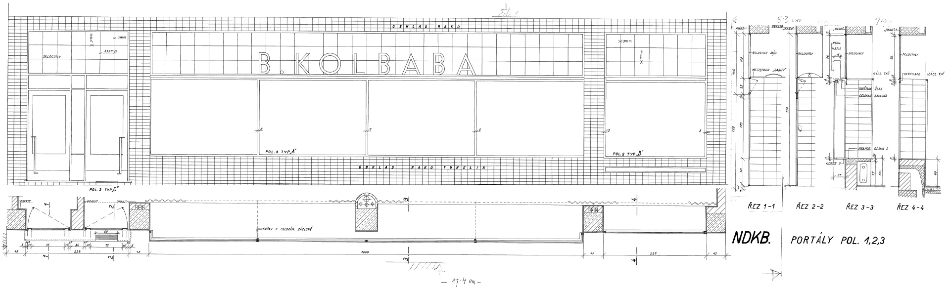
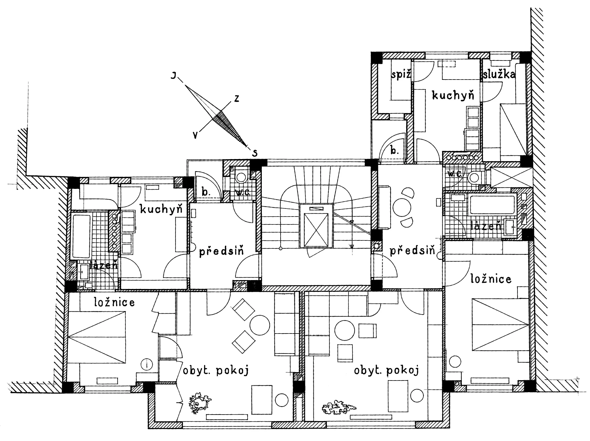
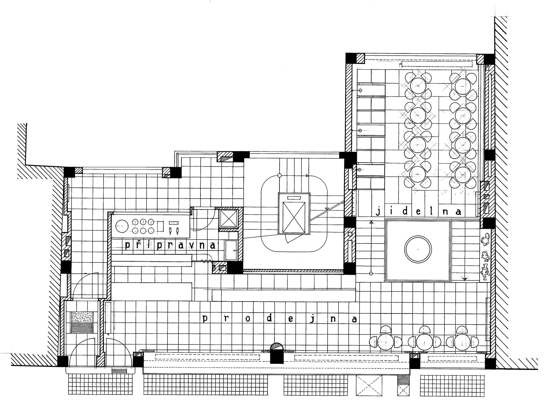
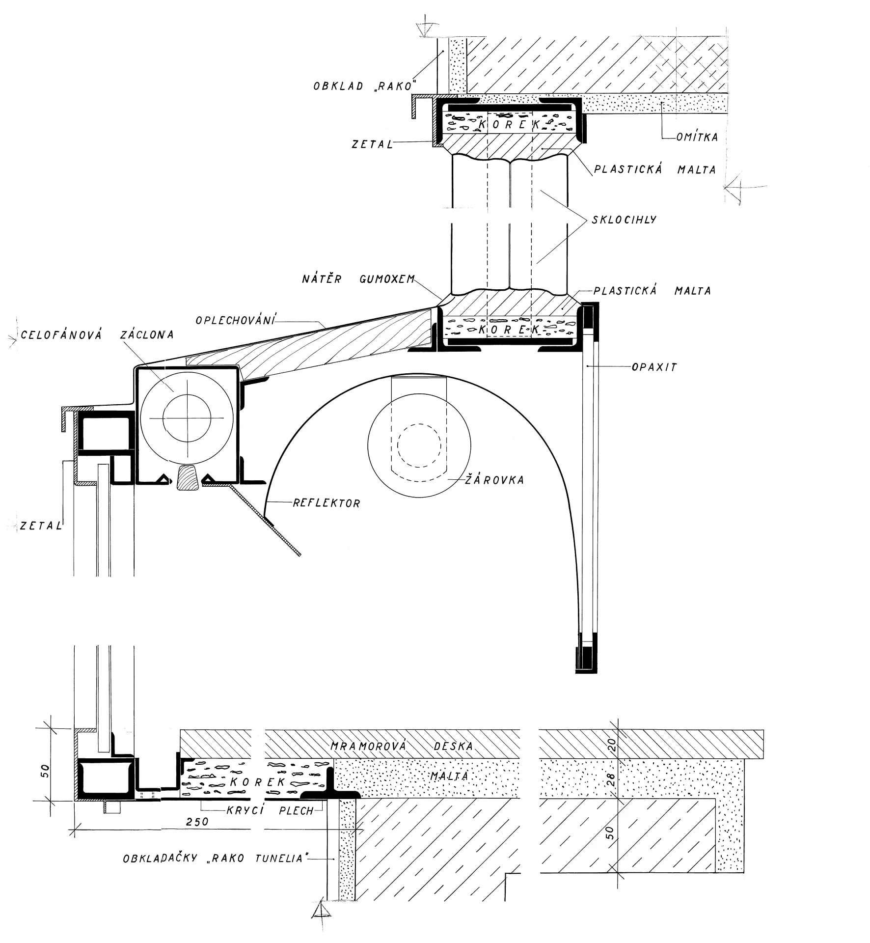
Eines der zahlreichen einzigartigen Brünner Cafés entstand im Jahre 1938 nach einem Entwurf des Architekten Jan Víšek in der Kounicova-Straße. Es bildete einen Bestandteil des Mietshauses für Bohumír und Jenoféva Kolbaba, die im Souterrain eine eigene Konditorei-Backstube einrichten ließen. Das fünfstöckige Haus mit zentralem Risalit weicht in keiner Weise von der strengen puristischen Konzeption der meisten Bauten Víšeks ab. Das Erdgeschoss mit den Schaufenstern des Cafés, wo auch ein Fenster für den Straßenverkauf nicht fehlen durfte, ist durch eine schwarze Opaxitverkleidung und Glasbetonbänder belebt. Links liegt der Eingang zum Wohnbereich in den oberen Stockwerken, in denen sich jeweils zwei Zweizimmerwohnungen befanden. In architektonischer Hinsicht ist jedoch der Raum des Cafés selbst am interessantesten, der sich über mehrere Niveaus verteilt. Vom Hauptraum der Konditorei mit der Verkaufstheke gelangt man in ein höher gelegenes Mezzanin mit einem Spiegel, der den Raum optisch vergrößert, und einer effektvollen halbrunden Deckenlampe. Im Souterrain befindet sich ein weiterer Teil des Cafés mit Sitzgelegenheiten, an den die tiefergelegte Backstube anschließt. Der Innenraum war ursprünglich mit einfachen Möbeln ausgestattet und wurde durch eine bis heute erhaltene Marmorverkleidung belebt. Bestandteil der Einrichtung waren auch ein Aquarium und ein kleiner Springbrunnen mit roten Fischen unterhalb der Treppe im Souterrain. Bereits die Fertigstellung des Kolbaba-Hauses selbst wurde jedoch durch den Beginn des zweiten Weltkriegs und die Mobilmachung erschwert. Nach einem eingeschränkten Betrieb während des Krieges folgte im Jahre 1949 die Verstaatlichung, und das Café fiel unter die Verwaltung der Genossenschaft „Včela“ („Biene“) und später des Staatsbetriebs „Pramen“ („Quelle“). Es war hier noch bis zum Jahre 1992 in Betrieb, als das Objekt der Familie Kolbaba zurückgegeben wurde, und diente von nun an als Textilgeschäft. Zu einer Wiedereröffnung des Cafés mit Konditorei und einer teilweisen Rekonstruktion der ursprünglichen Innenräume kam es im Jahre 2011. PH
Mietshaus mit der Konditorei Kolbaba
Name
Mietshaus mit der Konditorei Kolbaba
Architekt
Jan Víšek
Kode
C276
Typ
Hotel, Restaurant, Café
Adresa
Kounicova 270/11,
Brno
Öffentlicher Verkehr
Česká (TROL 32, 34, 36)
Česká (TRAM 3, 9, 10, 12)
Česká (TRAM 3, 4, 5, 6, 9, 12)
GPS
49.199746,16.604416
Literatur
Petr Pelčák, Vladimír Šlapeta, Ivan Wahla. Jan Víšek 1890–1966. Brno, Obecní dům Brno, 1999.