Kino Avia

C355

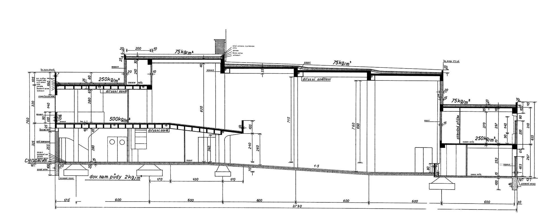
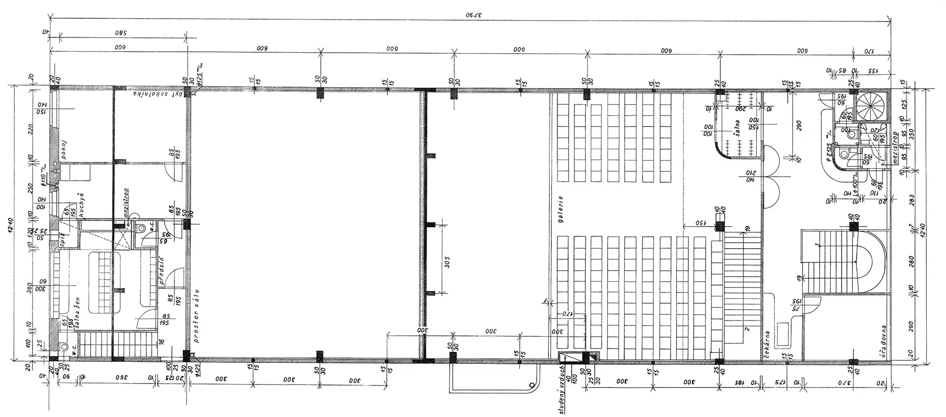
Das Gebäude des Kinos Avia von Josef Kranz in der Štolcova-Straße sollte ursprünglich Bestandteil eines größeren Sokol-Areals mit Turnhalle und Kulturzentrum sein, das jedoch letztendlich nicht realisiert wurde. Gebaut wurde nur ein Teil des geplanten Komplexes, der ein Kino, eine Wohnung für den Verwalter, Sporträume und einen Sportplatz im Freien enthielt. Die niedrige Straßenfassade des Objekts ist gleich wie bei Kranz' Café Era grafisch durch elementare Formen verschiedener Typen von Wandöffnungen gegliedert. Bestandteil der Fassade ist der verglaste zurückversetzte Haupteingang auf der linken Seite, dessen abgerundete Wand sich beim erhöhten Treppenhaus des Vorfürraums auf der rechten Seite wiederholt. Die schmale Fensterlinie im Erdgeschoss zeigt sich noch einmal im ersten Stock, der jedoch von einem Bandfenster dominiert wird, das nach außen hin den heterogenen Innenraum vereinheitlicht. Ein wichtiges künstlerisches Element war die augenfällige Aufschrift KINO AVIA über dem Eingang. Über die Eingangshalle mit den Garderoben gelangte man in den Kinosaal und zur Treppe, die in den ersten Stock und zur Zuschauergalerie führte. In diesem Geschoss befanden sich auch ein Büro, eine weitere Garderobe und die Wohnung des Verwalters, die im hinteren Teil der Parzelle lag. Heute werden die Räume des ehemaligen Kinos als Sportareal benutzt, was beträchtliche Umbauten notwendig machte. Die äußere Gestalt des Gebäudes ist jedoch im Wesentlichen erhalten geblieben. PH

Name
Kino Avia

Architekt
Josef Kranz

Kode
C355

Typ
Verwaltungsgebäude

Adresa
Štolcova 693/6, Brno

Öffentlicher Verkehr
Životského (TROL 31, 33)
Životského (TRAM 8, 9, 10)


GPS
49.189368,16.635516

Prameny
https://pamatkovykatalog.cz/kino-avia-18726377