School building

C021
více fotografií (23)

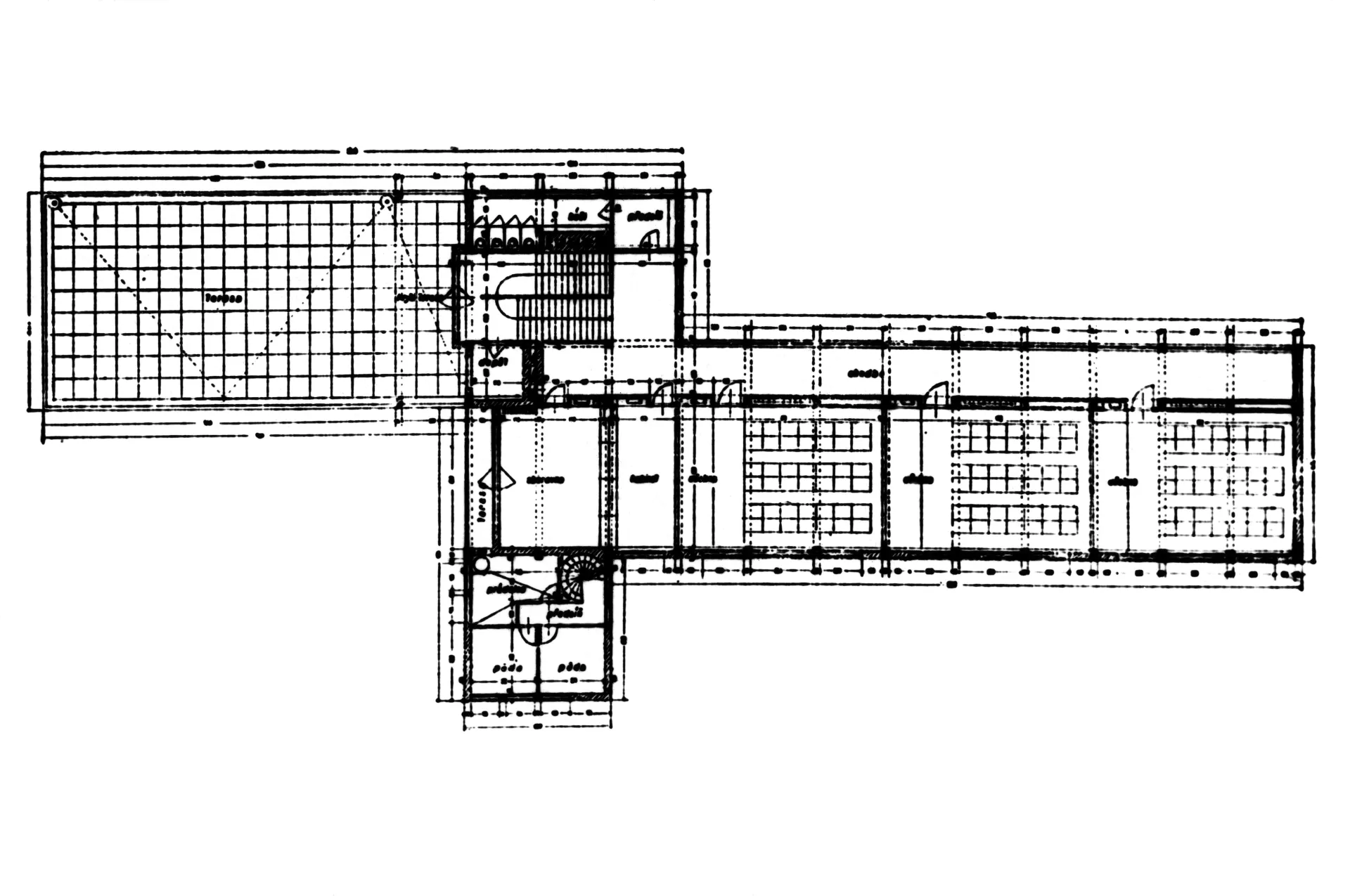
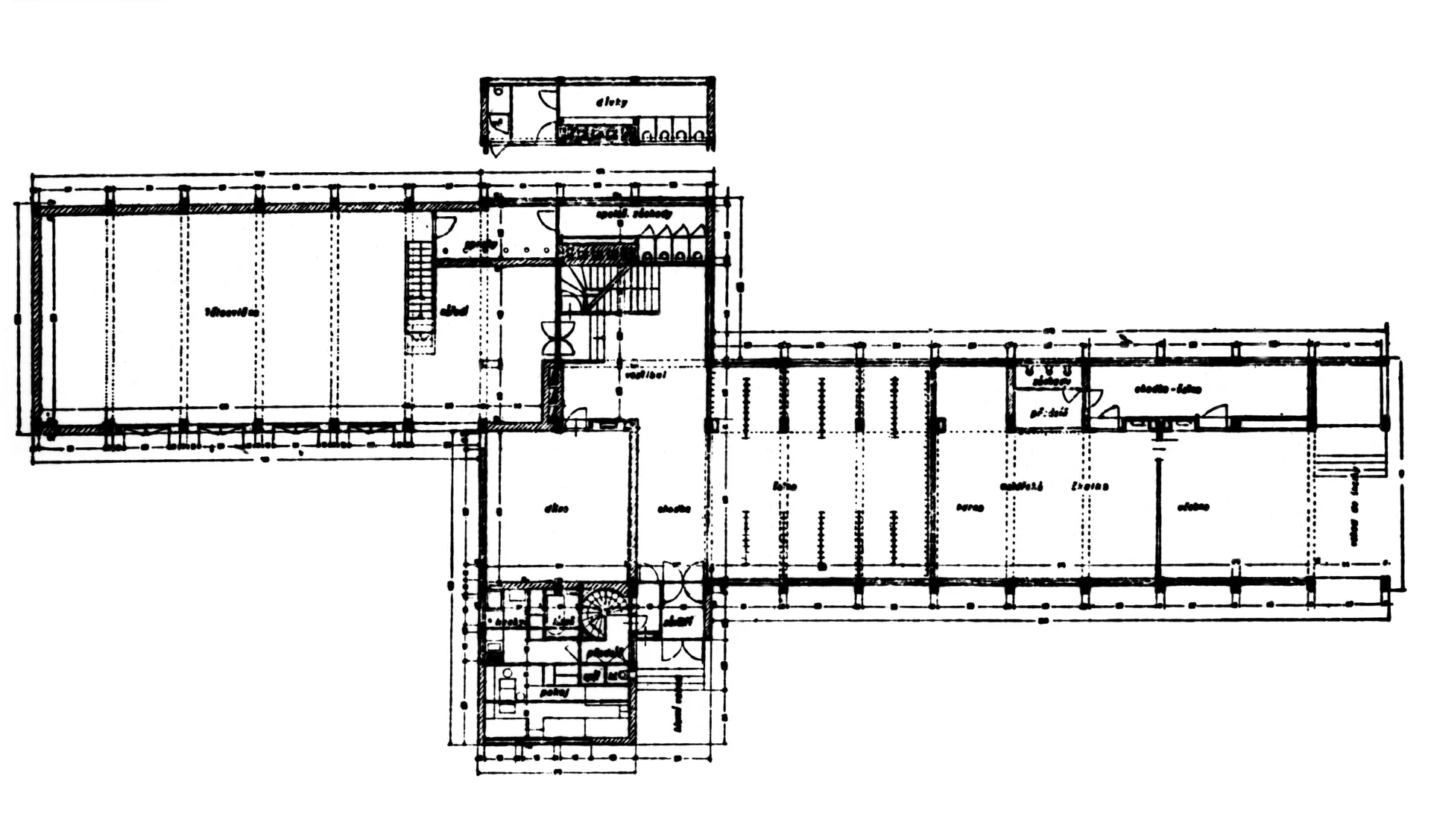
The 1920s saw the projection of not only architectural, but also pedagogical and hygienic innovations into the buildings of schools. The architects emphasized the location of the building and its orientation, sufficient amounts of light in the classrooms, adequate workshop equipment and the necessary furniture. These new principles governing the designs of schools were to a large extent formed in Dutch architecture with which the young architect Josef Polášek became familiar on his trips in the period between the wars. He profited from this knowledge in designing the school on Náměstí Míru in the Masaryk Quarter in collaboration with Bohuslav Fuchs in 1929. The building is situated in an extensive inner block at the end of Lerchova Street, encircled with residential houses and St. Augustine Church and its rectory. In this way, the school is protected against the noise of the street and surrounded by green areas. The mass of the building consists of two parallel wings connected by a perpendicular connecting wing. It features the main entrance, vestibule, teachers' offices, principal's office as well as sanitary facilities. The north-east wing consists of a double tract with a corridor lit by sunlight, locker rooms and a nursery school (with a separate entrance) on the ground floor and classrooms on the upper floors. The south-west wing houses a gym with a roof terrace for open-air lessons and student relaxation activities. However, these areas were later replaced with hipped roofs which significantly disrupted the original functionalist design of the building. The year 2005 witnessed the addition of a single-story school cafeteria, though no due care was taken in incorporating it into the school complex; its only link to the school building is a connecting corridor.

Name
School building

Architekti/ky
Bohuslav Fuchs, Josef Polášek

Code
C021

Type
Educational facility

Adresa
náměstí Míru 375/3, Brno

Public transport
Barvičova (TROL 35, 39)

GPS
49.202649,16.579899

Literature
Josef Polášek. K vývoji školních budov. Stavitel. 1929. X. s. 157–162, 166.
Josef Polášek. Holandské školy. Styl. 1931. XI. s. 33–37.
Petr Pelčák, Ivan Wahla. Josef Polášek 1899–1946. Brno, Obecní dům Brno, 2004.
Iloš Crhonek. Architekt Bohuslav Fuchs. Celoživotní dílo. Brno, Petrov, 1995.
Zdeněk Kudělka, Jindřich Chatrný. O Nové Brno. Brněnská architektura 1919-1939. Brno, Muzeum města Brna, 2000.