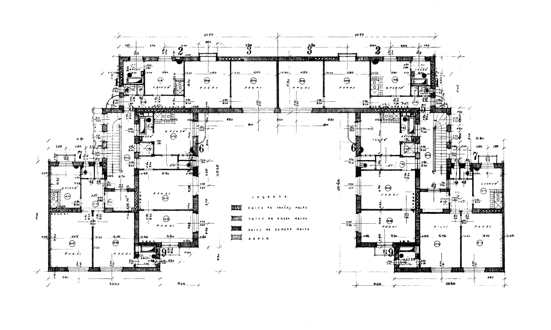
The apartment buildings in Kotlářská, Tučkova and Zahradníkova streets forming part of a block with a large courtyard, represent another design Kumpošt produced for the Úspora (Savings) housing and building cooperative. The inner yard, a green oasis accessible through the passage in the middle retracted building in Tučkova Street, is an innovation as compared to the previous confined and dark areas. The yard is similar to the Wohnohofs in Vienna, which became a part of the typology of "red Vienna" social development at that time. In Zahradníkova Street, the block merges into a row of buildings, which show a change in the author's design of the facade. The facade features the functionalist motive of a ribbon window broken by the empty space of loggias in the middle entirely in line with the classicist pursuit of symmetry. The houses contain one- or two-room apartments, often furnished with a large residential kitchen in place of the living room. PH
Apartment buildings, Úspora (Saving) housing and building cooperative
Name
Apartment buildings, Úspora (Saving) housing and building cooperative
Architect
Jindřich Kumpošt
Code
C256
Type
Apartment building
Adresa
Zahradníkova | Tučkova 500–503, 418 | 416–418, 258 / 12–16, 16a, 18 | 13–21,
Brno
Public transport
Rybkova (TRAM 3, 11)
Nerudova (TRAM 12)
Zahradníkova (TROL 32)
GPS
49.206946,16.596823
Literature
Petr Pelčák, Ivan Wahla. Jindřich Kumpošt 1891–1968. Brno, Obecní dům Brno, 2006.
Zdeněk Kudělka, Jindřich Chatrný. O Nové Brno. Brněnská architektura 1919-1939. Brno, Muzeum města Brna, 2000.
Prameny
https://pamatkovykatalog.cz/najemni-dum-stavebniho-bytoveho-druzstva-uspora-7846145