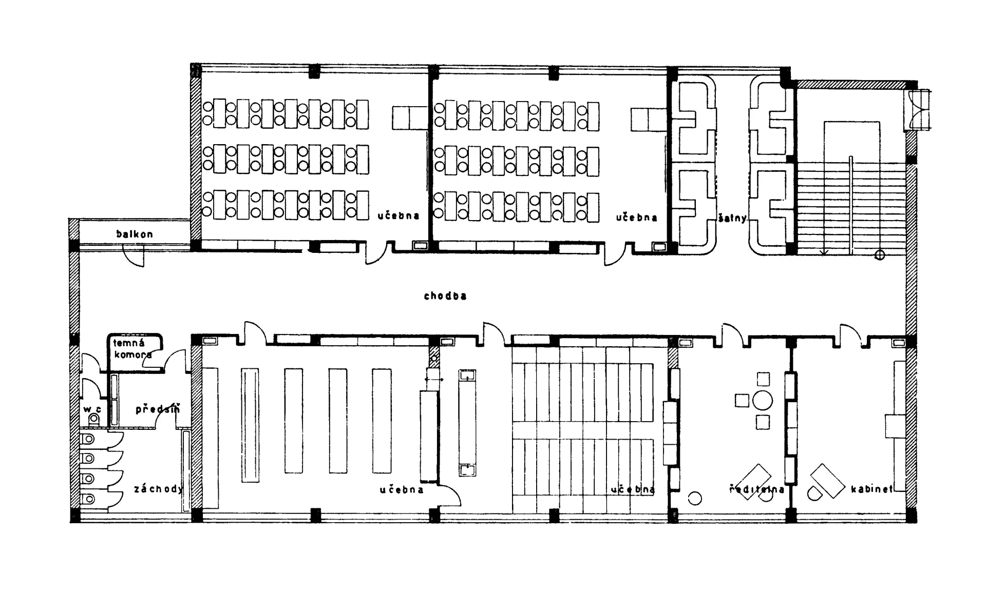
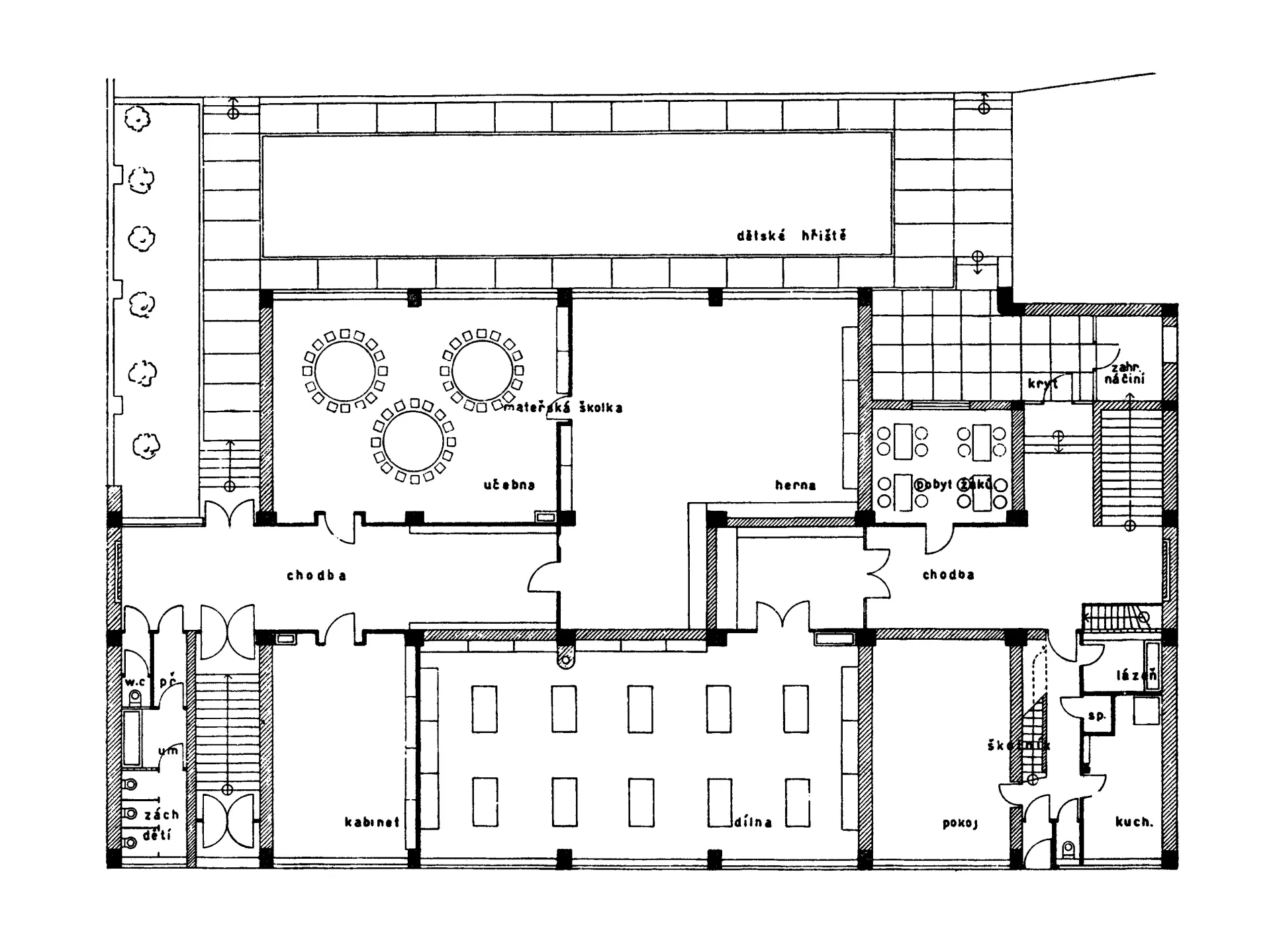
In 1930, architect Josef Polášek designed an extension for an elementary school in Kotlářská Street. He drew upon his experience with designing school facilities as well as facts he had learned on his journeys abroad. The new five-level building adjoins the original historicist school building in Kotlářská Street. The main entrance is situated in a vestibule on the right and is accessible from a terrace in Kounicova Street. This design was selected to prevent young pupils from running headlong into the busy street. The architect stressed sufficient lighting and ventilation of classrooms. Adequate daylight is provided by large windows forming a grid on the front of the building. The corridors are lit by glass block fields in the walls of the classrooms and can be ventilated thanks to the balconies at their ends. Each floor housed four classrooms with built-in furniture. The ground floor of the building housed a nursery school adjoined by a small playground delimited by a low wall in the inner yard, specialized workshops with modern equipment for older pupils and the school caretaker's flat with a separate entrance. The school also featured a roof terrace overlooking the inner yard. LV
School extension
Name
School extension
Architect
Josef Polášek
Code
C271
Type
Educational facility
Adresa
Kotlářská 655/4,
Brno
Public transport
Konečného náměstí (TROL 25, 26)
Sušilova (TROL 32, 34, 36)
Konečného náměstí (TRAM 3, 10, 12)
GPS
49.205519,16.597651
Literature
Josef Polášek. Holandské školy. Styl. 1931. XI. s. 33–37.
Petr Pelčák, Ivan Wahla. Josef Polášek 1899–1946. Brno, Obecní dům Brno, 2004.