Rodinné domy v kolonii Pod vodojemem

C033
Rodinné domy v kolonii "Pod vodojemem" (Rezkova 429-447/28-49), Foto: David Židlicky, Zdroj: Obecní dům Brno více fotografií (42)

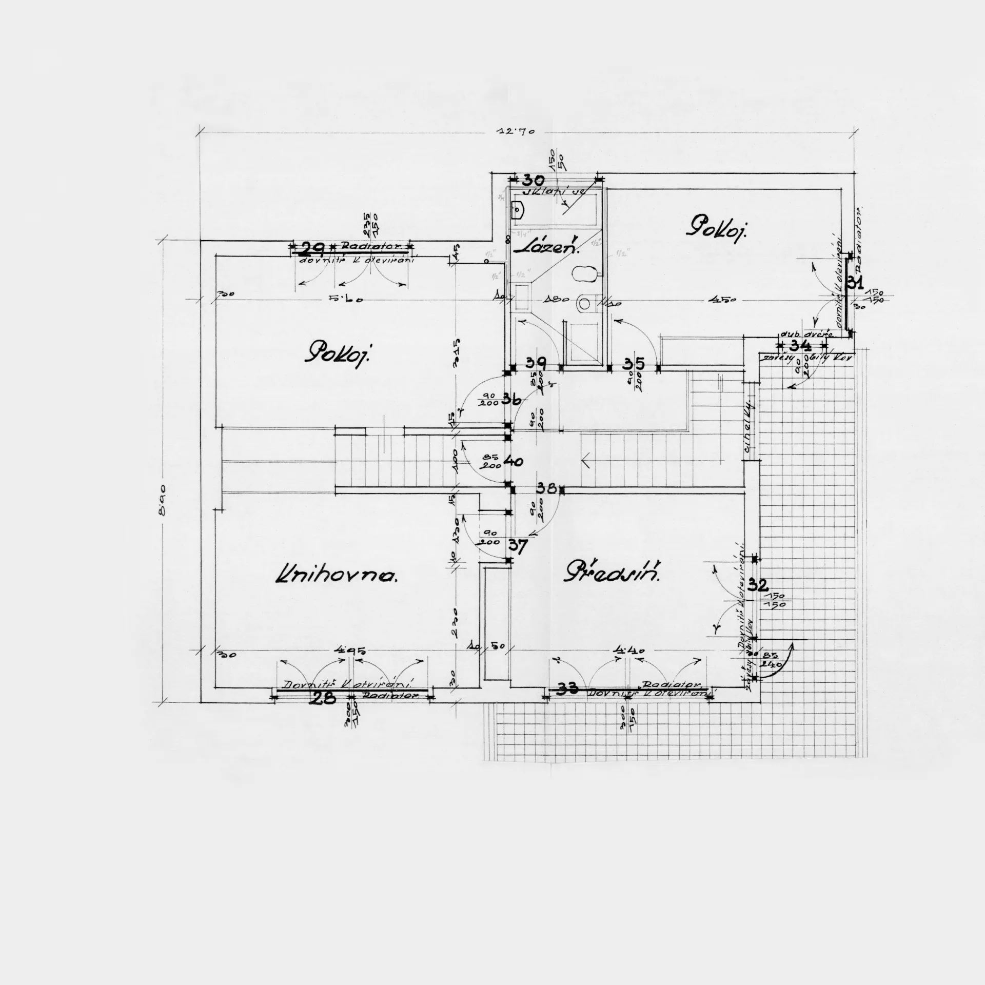
V kolonii Pod vodojemem v brněnské Masarykově čtvrti bylo v polovině 30. let vybudováno několik rodinných domů, které navrhli přední brněnští funkcionalističtí architekti. Z několika Kumpoštových realizací v Rezkově ulici vyniká dům č. 40 manželů Krejčových, jenž zaujme elegantní křivkou uliční fasády a nautickým motivem zaoblených pásových oken. Rodinný dům Gustava Uzla, původně prof. dr. M. Rostohara, 1935–1936, Brno-Stránice, Rezkova 28 Rodinný dům manželů Češkových, 1935–1936, Brno-Stránice, Rezkova 30 (autorství nepotvrzeno) Rodinný dům Heleny Hrbkové, 1935–1936, Brno-Stránice, Rezkova 31 Rodinný dům manželů JUDr. Pavla a Heřmy Havlíkových, 1935–1936, Brno-Stránice, Rezkova 32 Rodinný dům Růženy Šidlejové, 1935–1936,Brno-Stránice, Rezkova 36 Rodinný dům Bohumila a Pavly Šmerkových, 1937, Brno-Stránice, Rezkova 38 Rodinný dům ing. Karla a Anastázie Krejčových, 1936–1937, Brno-Stránice, Rezkova 40 Rodinný dům Richarda a Žofie Klimešových, 1935–1936, Brno-Stránice, Rezkova 41 Rodinný dům Aloise a Milady Linhartových, 1935–1936, Brno-Stránice, Rezkova 45 Rodiny dům Evžena a Růženy Svobodových, 1935–1936, Brno-Stránice, Rezkova 47 Rodinný dům Bohuslavy a Anežky Verostových, 1935–1936, Brno-Stránice, Rezkova 49

Název
Rodinné domy v kolonii Pod vodojemem

Datace
1935 – 1937

Architekt
Jindřich Kumpošt

Kód
C033

Typ
Vila, rodinný dům

Adresa
Rezkova 429–447/28–49, Brno

MHD
Barvičova (TROL 35, 39)
Marie Pujmanové (TROL 38)


GPS
49.200494,16.574379

Literatura
Petr Pelčák, Ivan Wahla. Jindřich Kumpošt 1891–1968. Brno, Obecní dům Brno, 2006.
Petr Pelčák, Ivan Wahla. Generace 1901–1910. První absolventi české školy architektury v Brně 1925–1940. Brno, Obecní dům Brno, 2000.