Rodinný dům v kolonii Nový dům

C187

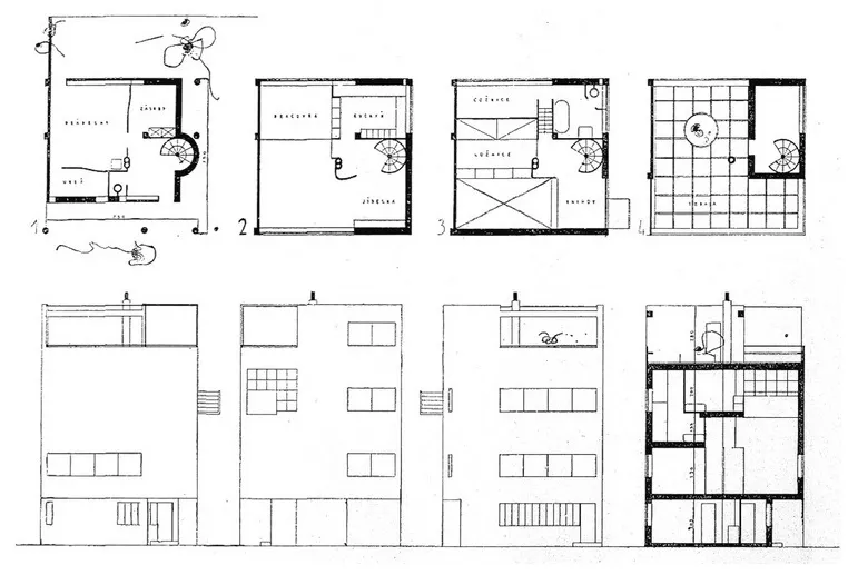
Za největší stavební experiment v kolonii Nový dům lze považovat rodinný domek od architekta Hugo Foltýna, který uzavírá řadu domů od Jana Víška a Miroslava Putny v Drnovické ulici. Ve věku pouhých dvaceti let navrhl Foltýn stavbu, která svědčí o jeho znalosti Le Corbusierovy architektury, zvláště domu typu Citrohan ve stuttgartské kolonii Weissenhofsiedlung z roku 1927. Dům na čtvercovém půdorysu tvořil formálně jeden celek s vedlejším domem od Miroslava Putny, jejich dispozice a pojetí vnitřního prostoru byly však zcela odlišné. Foltýnova stavba měla původně částečně volné přízemí na sloupech, které tvořily součást nosného železobetonového skeletu umožňujícího rozvolnění půdorysu jednotlivých pater a prosklení fasády. Vertikální komunikaci zajišťovalo točité schodiště, které ústilo na obytnou střešní terasu. Ústředním prvkem domu byla obytná hala převýšená přes dvě podlaží a otevřená pásovým oknem do ulice. Druhé patro tvořila galerie s navazující ložnicí otevřenou do haly. Toto podlaží bylo prosvětleno rastrovým oknem s balkonem v boční fasádě, které tvořilo i bazilikální světelný efekt v hlavní hale. Další ložnice a koupelna se nacházely v mezipatře přístupném schodištěm z galerie. Jejich převýšené prostory byly osvětleny pásovým oknem zahradní fasády. Tímto prolínáním různých výškových úrovní bylo dosaženo vertikálně plynoucího prostoru vycházejícího z Le Corbusierovy převýšené haly i prostorového plánu Adolfa Loose. Jedinečná byla také neuzavřenost jednotlivých místností a s tím související světelné efekty v prostoru. Foltýnovým cílem bylo vytvořit dokonalý „stroj na bydlení“, jenž by se vymykal konvenčním představám a svým vnitřním prostorem neustále uchvacoval. V současné době však na místě Foltýnovy stavby najdeme běžný řadový domek jako výsledek kompletní přestavby objektu podle konvenčních potřeb pozdějších uživatelů. PH

Název
Rodinný dům v kolonii Nový dům

Datace
1928

Architekt
Hugo Foltýn

Kód
C187

Typ
Vila, rodinný dům

Adresa
Drnovická 1001/4, Brno

MHD
Bráfova (TRAM 1)

GPS
49.206104,16.571518

Literatura
Bedřich Václavek, Zdeněk Rossmann (red.). Katalog výstavy moderního bydlení Nový dům. Brno, František Uherka, Čeněk Ruller, 1928.