Techmašexport

D230

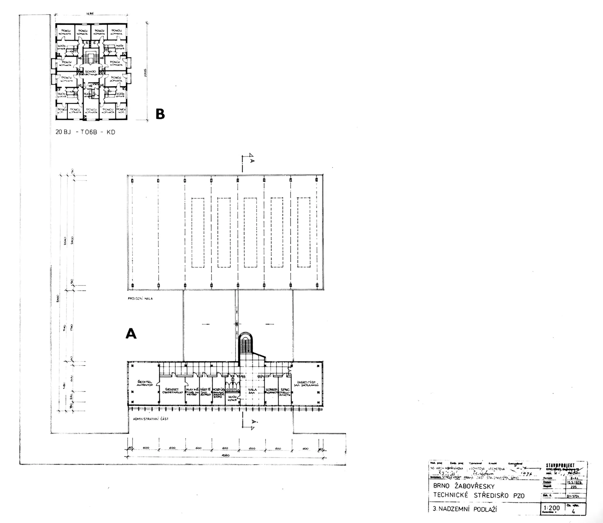
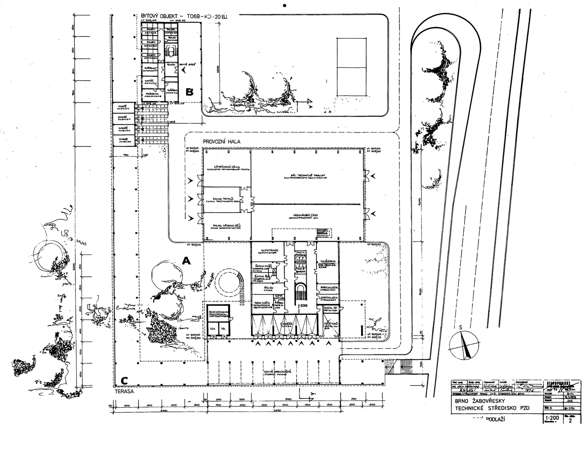
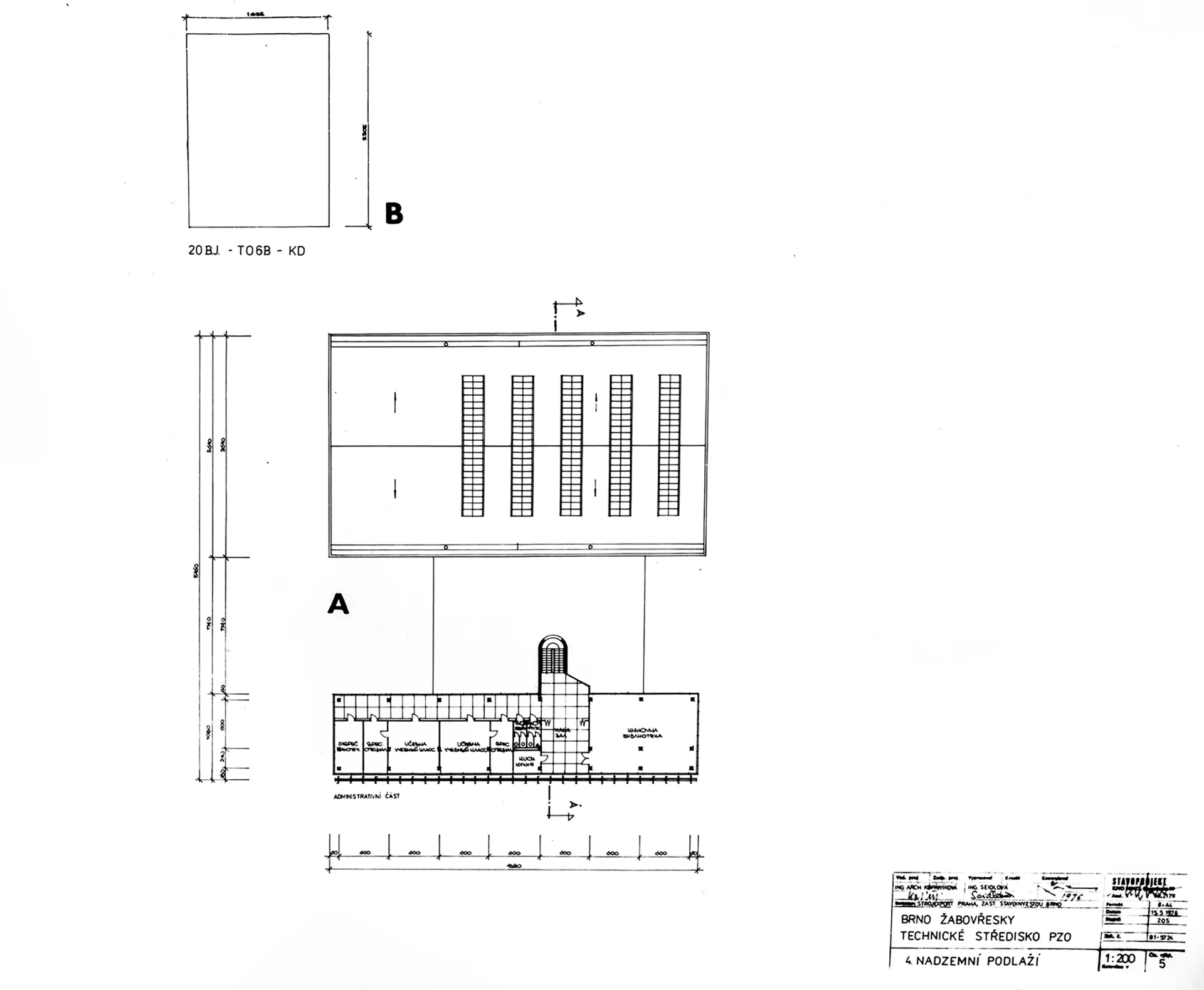
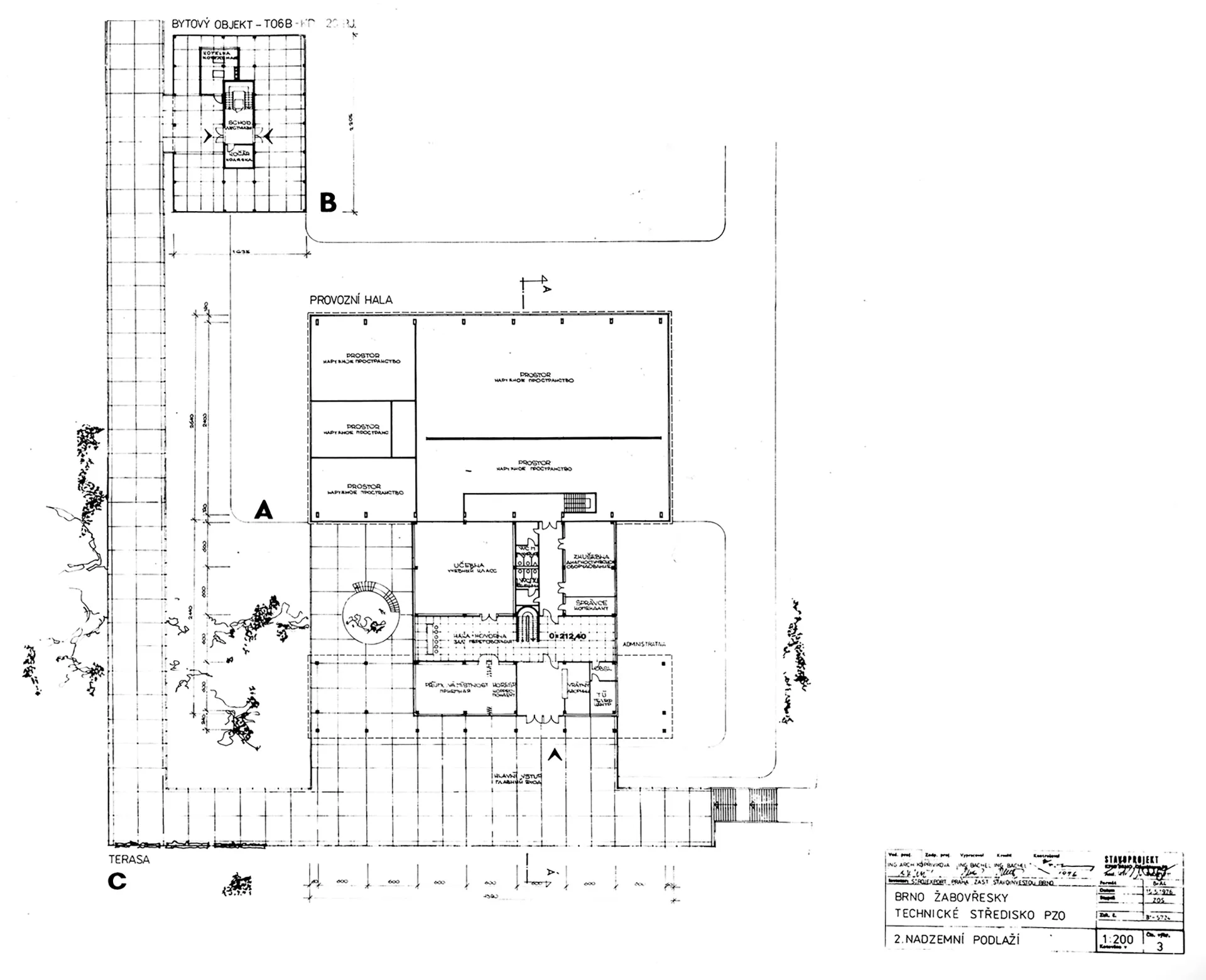
Státem řízená ekonomika socialistického Československa se neobešla bez čilé obchodní výměny s dalšími státy, a to nejenom z protežovaného socialistického tábora. Zásadními partnery byly země tzv. kapitalistického světa, které byly zdrojem velmi potřebných deviz. Obchodní výměnu s dalšími zeměmi spravovalo ministerstvo zahraničního obchodu, které zřizovalo pro tento účel různě specializované Podniky zahraničního obchodu (PZO). Jejich činnost byla pod bedlivou kontrolou Státní bezpečnosti a atraktivní pracovní místa byla obvykle obsazována prověřenou elitou, jež pocházela z řad rodin čelných představitelů komunistické strany a absolventů ekonomických a právnických škol. Podniky zahraničního obchodu byly koncentrovány na území hlavního města Prahy a řada z nich sídlila ve Veletržním paláci (Kovo, Centrotex, Koospol, Omnipol ad.). Zvláštní pozornost byla věnována i jediné stavbě tohoto typu realizované v Brně. Objekt Techmašexportu ovšem neměl sloužit československým podnikům, měl být sídlem obchodních zastoupení výrobních závodů ze Sovětského svazu se specializací na prodej strojů a zařízení pro textilní, potravinářský, papírenský nebo polygrafický průmysl. K vypracování projektu byl vyzván brněnský Stavoprojekt a výstavbou objektu byly pověřeny Pozemní stavby Brno. O tehdejší politické závažnosti celého úkolu svědčí i fakt, že dohled nad realizací projektu měl Ústřední výbor Komunistické strany Československa. Architektonické řešení vypracovala v letech 1976 až 1978 Libuše Kopřivíková, která navrhla rozdělit jednotlivé funkce stavby do tří objektů vzájemně propojených pochozí terasou na úrovni druhého nadzemního podlaží. Nejnižší objekt tvořila velkoprostorová výstavní hala s dílnami pro servis strojů. Tvarově nejpropracovanější byla pětipodlažní administrativní budova, ve které se nacházely mimo jiné laboratoře, školicí místnosti, kinosál nebo bufet. Bokem, ale také propojen terasou, stál obytný dům, ve kterém se nacházelo 20 bytů pro pracovníky podniku. Při jeho stavbě byl využit panelový konstrukční systém T06B, který byl nasazen na atypické podnoži. Výstavní hala je tvořena ocelovou konstrukcí a základem administrativní budovy je montovaný železobetonový skelet. Libuše Kopřivíková u svých realizací s oblibou používala kontrastu horizontálního rozvržení staveb s akcentováním jejich vertikálního členění. V případě Techmašexportu je tento charakter podtržen cihlově červeným keramickým obkladem na soklech budov a jejich obložením z bílých hliníkových lamel. V podobném duchu je do kontrastu postavena zdůrazněná střešní terasa administrativní budovy a výrazné vertikální slunolamy na jižní fasádě. Budovy v současné době vlastní ruská společnost Techmaš Brno, která jednotlivé prostory pronajímá dalším subjektům. Výstavní hala Techmašexportu byla v roce 1991 upravena pro potřeby obchodního řetězce Billa, který v Brně otevřel svoji první prodejnu na území Československa. RK

Název
Techmašexport

Datace
1979 – 1982

Architekt
Libuše Kopřivíková

Kód
D230

Typ
Administrativní stavba

Adresa
Stránského 3033/28, Brno

GPS
49.212397,16.567919

Prameny
https://pamatkovykatalog.cz/techmasexport-20583295
https://pamatkovykatalog.cz/vystavni-hala-20588024
https://pamatkovykatalog.cz/administrativni-budova-20587970
https://pamatkovykatalog.cz/bytovy-dum-20588086