Doppel-/reihenhäuser

C011

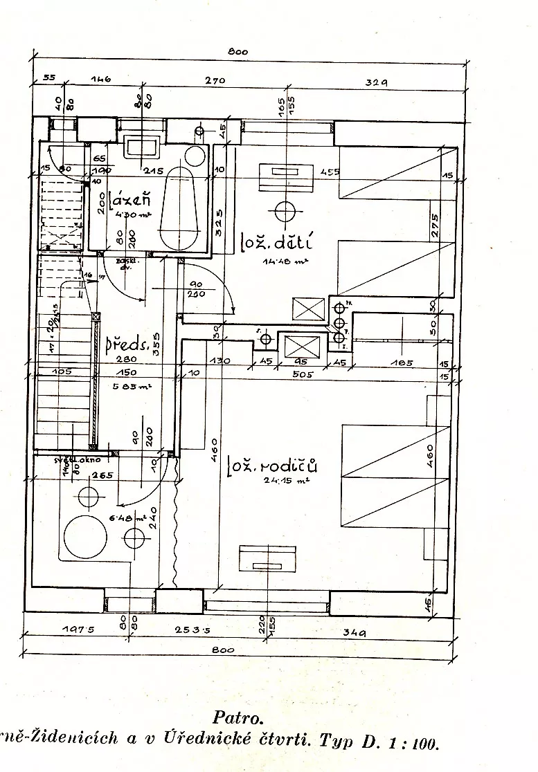
In der Zeit der Baustagnation nach dem 1. Weltkrieg stellte das Reihenhaus eine der wenigen finanziell erschwinglichen Bautätigkeiten dar. Die neue Auffassung eines Einfamilienhauses verließ die traditionelle ländliche Form und wurde unter Einfluss der Ideen englischer Gartenstädte zu einem vollwertigen Bestandteil der städtischen Bauproduktion. Dank der Einsparungen durch die Benützung von gemeinsamen Fundamenten, Dachstühlen und Seitenwänden entstanden billige Reihenhäuser auf schmalen Grundstücken für unter 100.000 Kč. In den Straßen Barvičova, Roubalova und Vojanova entstanden nach dem Entwurf von Jaroslav Grunt eingeschossige Typendoppelhäuser, die auf Kosten der Stadt erbaut wurden und vorwiegend für Angestellte der öffentlichen Verwaltung bestimmt waren. Ihre Raumaufteilung entsprach bereits den zeitgenössischen Ansprüchen der städtischen Mittelklasse. Im Erdgeschoss befanden sich das Wohnzimmer und die Küche mit einem Dienstmädchenzimmer, im ersten Stock wurden zwei Schlafzimmer und ein Bad untergebracht. Betriebsräume wurden im Souterrain platziert. Progressiv wurde auch die Fassade behandelt, die auf den ersten Entwürfen noch durch horizontale, dekorative Linien strukturiert ist. Ihre endgültige Form spiegelt jedoch die Aufteilung der Innenräume wieder und schliesst damit ab, die Funktion einer reich geschmückten Kulisse zu erfüllen. Die glatte Fläche der Frontseite ist nur durch die Fensteröffnungen und der Eingang mit dem Windfang aus Rohbauziegeln strukturiert. Grunts Doppel-/reihenhäuser entstanden zusammen mit den Reihenhäusern von Bohuslav Fuchs in der Barvičova Straße im Baubüro der Stadt und zeichneten eine neue zweckvolle Auffassung des individuellen Wohnens vor, die sich in den nächsten Jahren weiter entwickeln sollte.

Name
Doppel-/reihenhäuser

Architekt
Jaroslav Grunt

Kode
C011

Typ
Villa, Einfamilienhaus

Adresa
Barvičova 18–32/20–34, Brno

Öffentlicher Verkehr
Pavlíkova (TROL 38 / BUS 68)
Vaňkovo náměstí (TROL 35, 38, 39 / BUS 68)


GPS
49.196265,16.583649

Literatur
Petr Pelčák, Ivan Wahla. Jaroslav Grunt. 1893–1988. Brno, Obecní dům Brno, 2010.