Städtisches Haus mit Kleinwohnungen

C365

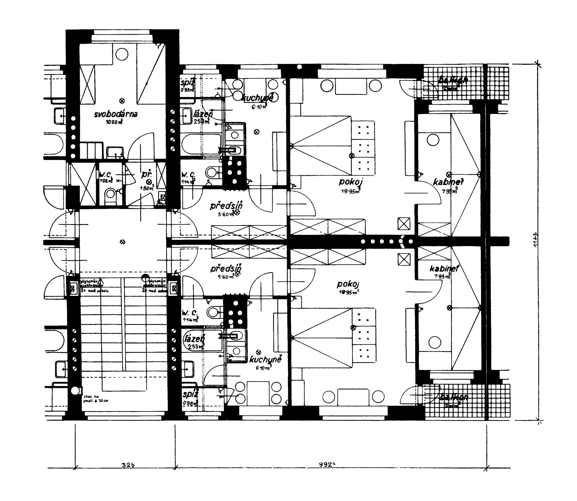
Der Bau der Häuser für Arme in der Náplavka-Straße war ebenso wie ähnliche Projekte dieser Zeit auf Brünner Gebiet durch ein Gesetz über Bautätigkeiten aus dem Jahre 1936 motiviert. Dieses ermöglichte den Städten, eine staatliche Förderung für die Errichtung von Mietshäusern für sozial Schwache zu erhalten. Die Häuser wurden nach einem Entwurf von Josef Polášek erbaut, der zur gleichen Zeit den Anbau der Mädchenschule auf der benachbarten Parzelle in der Křídlovická-Straße realisierte. Die Stirnseite des Gebäudes ist rhythmisch durch die vertikalen Glasbänder der Treppenhausfenster und durch Loggien gegliedert; an der rückseitigen Fassade befinden sich zusätzlich Risalite, die die Räume von Garçonnieren erkennbar machen. Die innere Gliederung des Hauses entspricht der bereits bewährten Konzeption von Gebäuden für Arme mit vier Kleinwohnungen und einer Einzimmerwohnung in jedem Stock der einzelnen Hauseinheiten. Wie es bei Polášeks Sozialbauten üblich ist, ist hier der Großteil der Wohnungen auf etwas unvorteilhafte Weise mit allen Räumen einer Himmelsrichtung zugewandt. Die Wohneinheiten sind jedoch bereits geräumiger und bestehen aus einem Vorzimmer, einer eigenen Küche, zwei Zimmern und einem Badezimmer mit Wanne und Toilette. Im Zuge einer vor kurzem vorgenommenen Renovierung erhielt das Haus neue Plastikfenster, die Fassaden eine neue Wärmedämmung und eine Farbe, die einzelne architektonische Elemente etwas anders akzentuiert, als es ursprünglich vorgesehen war. Die konstruktivistische Ästhetik der feinen Fensterrahmen und der einheitlich hellen Fassade wurde hier durch Holzimitationen und mehrere orange Farbtöne des Verputzes ersetzt. LV

Name
Städtisches Haus mit Kleinwohnungen

Architekt
Josef Polášek

Kode
C365

Typ
Mehrfamilienhaus

Adresa
Náplavka 657, 658, 659 / 2, 4, 6, Brno

Öffentlicher Verkehr
Křídlovická (TRAM 8, 10)
Křídlovická (BUS 60, 61)
Křídlovická (BUS 44, 84)


GPS
49.186564,16.601741

Literatur
Josef Polášek. Domy pro chudé města Brna. Architektura. 1939. I. s. 234–239.
Rostislav Švácha. Josef Polášek. Architekt chudých. Výtvarná kultura. 1984. 8. s. 64.
Petr Pelčák, Ivan Wahla. Josef Polášek 1899–1946. Brno, Obecní dům Brno, 2004.