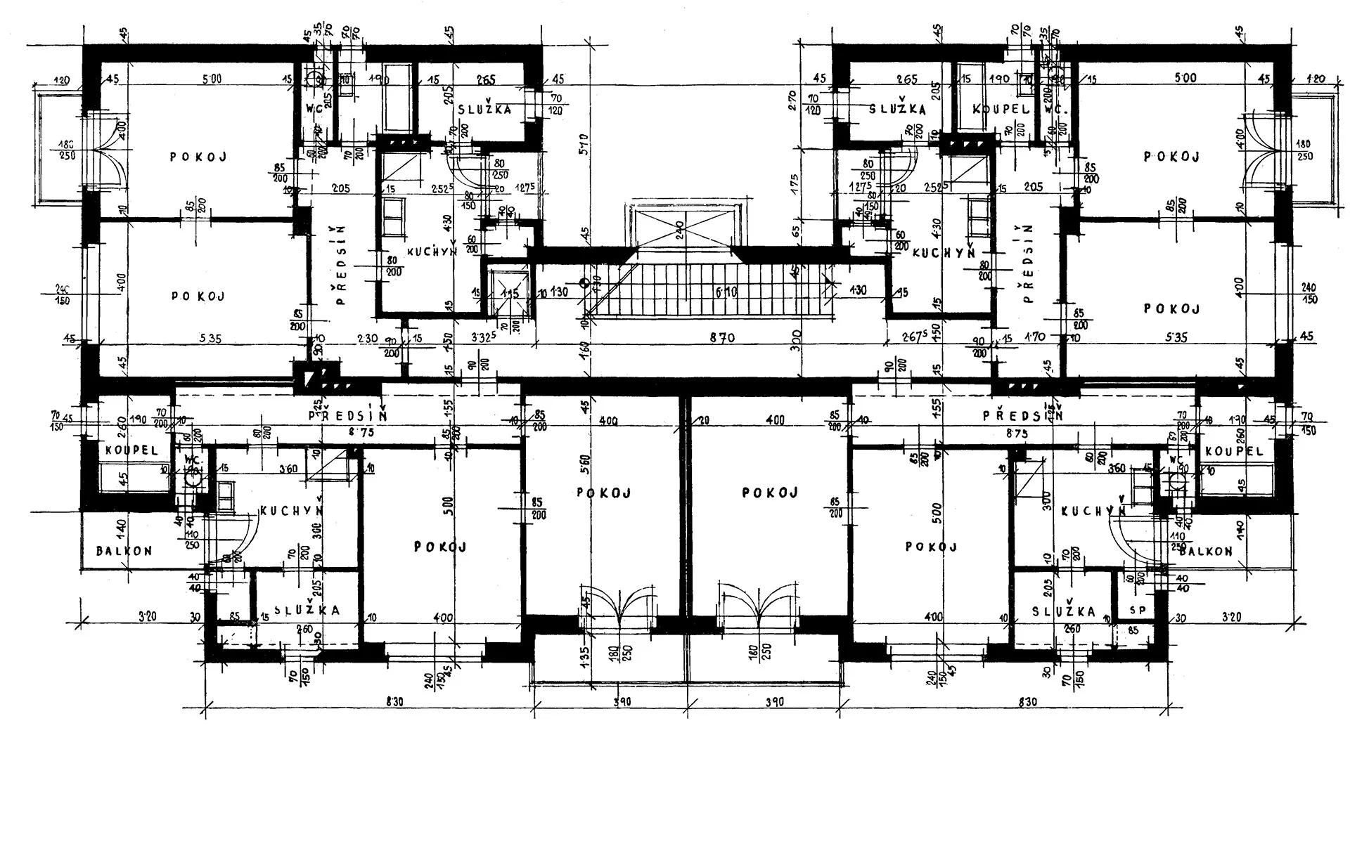
Leopold Blum apartment block
https://static.viaaurea.eu/t/am/documents/47/4847.jpg/o-fm:webp|w:360|h:360|q:80/s-2edc62e34eea?_ts=1761795063
https://static.viaaurea.eu/t/am/documents/48/4848.jpg/o-fm:webp|w:360|h:360|q:80/s-774b478b3527?_ts=1761795063
https://static.viaaurea.eu/t/am/documents/49/4849.jpg/o-fm:webp|w:360|h:360|q:80/s-43448a967fa3?_ts=1761795063
https://static.viaaurea.eu/t/am/documents/50/4850.jpg/o-fm:webp|w:360|h:360|q:80/s-975e1833dc7a?_ts=1761795063
https://static.viaaurea.eu/t/am/documents/51/4851.jpg/o-fm:webp|w:360|h:360|q:80/s-aafb051ed8da?_ts=1761795063
https://static.viaaurea.eu/t/am/documents/53/4853.jpg/o-fm:webp|w:360|h:360|q:80/s-32bb1adf84e1?_ts=1761795063
více fotografií (7)