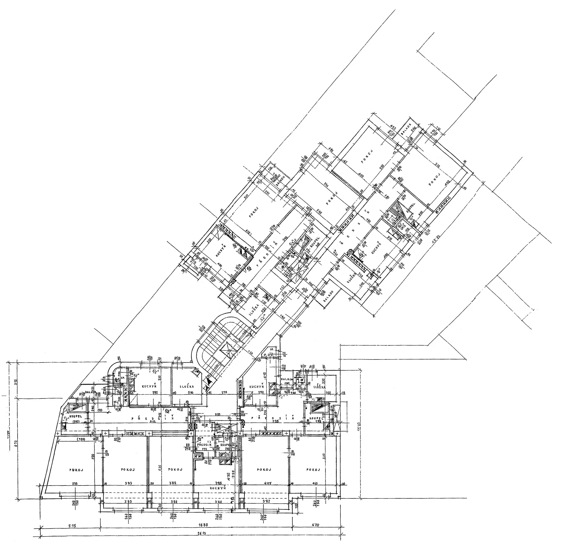
Apartment building
https://static.viaaurea.eu/t/am/documents/12/4512.jpg/o-fm:webp|w:360|h:360|q:80/s-faa9a129b21f?_ts=1761795059
https://static.viaaurea.eu/t/am/documents/13/4513.jpg/o-fm:webp|w:360|h:360|q:80/s-68bbd25f96c3?_ts=1761795059
https://static.viaaurea.eu/t/am/documents/14/4514.jpg/o-fm:webp|w:360|h:360|q:80/s-cc47a94b8117?_ts=1761795059
více fotografií (4)