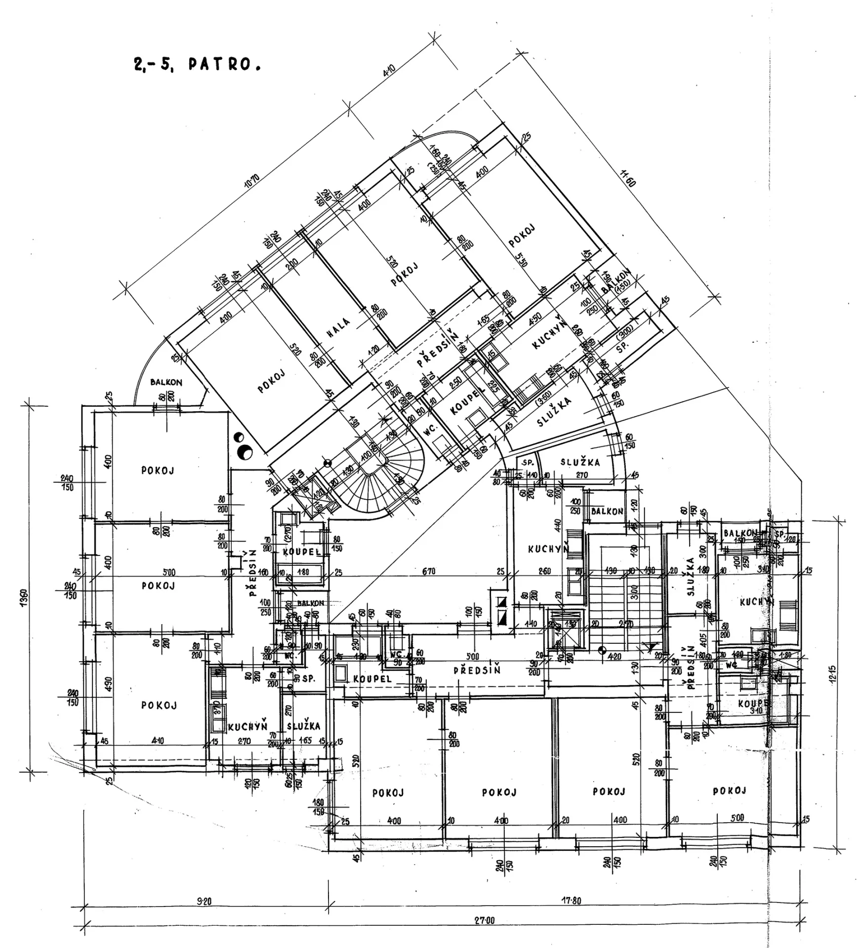
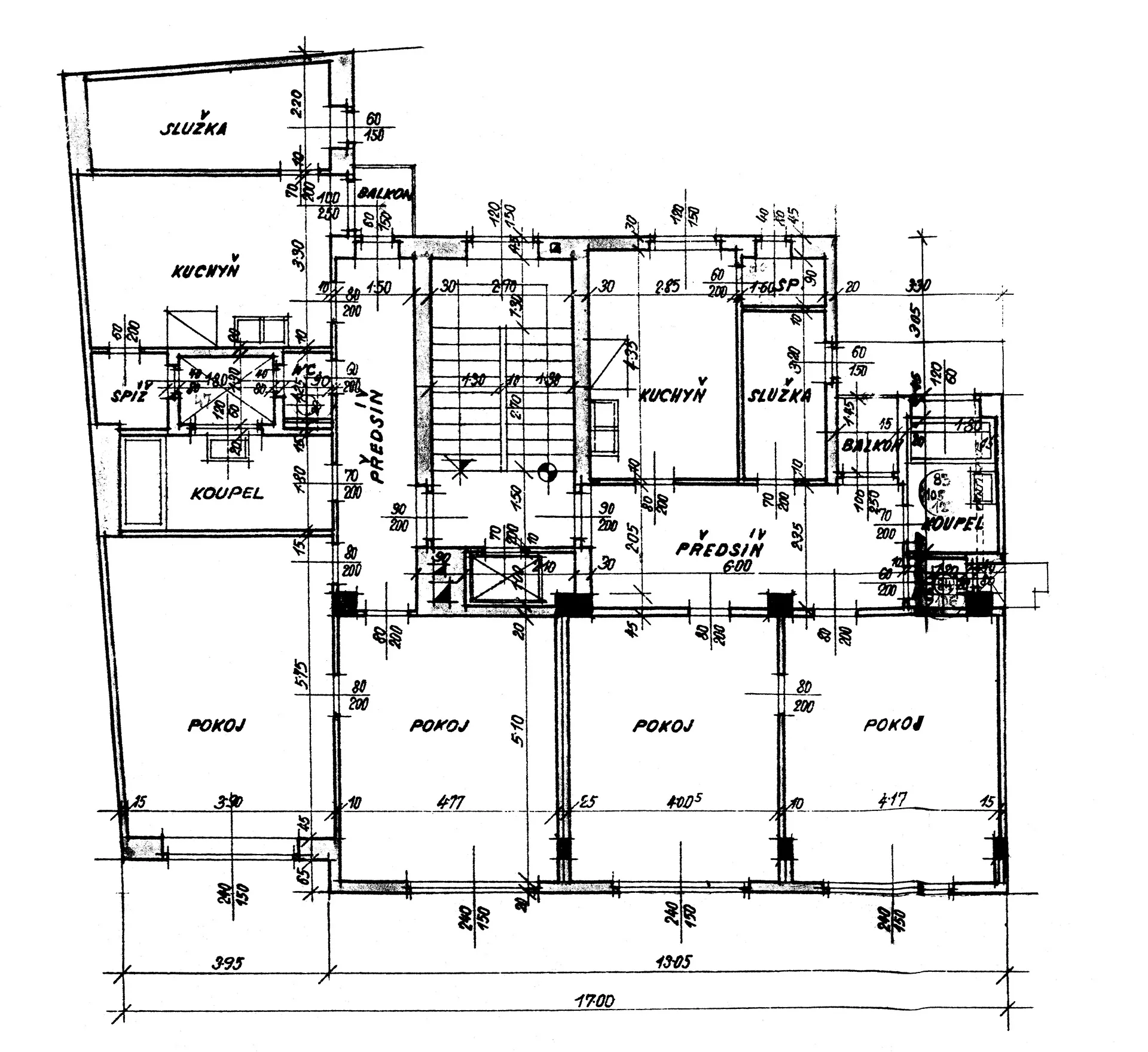
Apartment building with shops
https://static.viaaurea.eu/t/am/documents/02/4502.jpg/o-fm:webp|w:360|h:360|q:80/s-0dd2b9b74824?_ts=1761795059
https://static.viaaurea.eu/t/am/documents/03/4503.jpg/o-fm:webp|w:360|h:360|q:80/s-9b07e2cc961c?_ts=1761795059
https://static.viaaurea.eu/t/am/documents/04/4504.jpg/o-fm:webp|w:360|h:360|q:80/s-a2fe71d27076?_ts=1761795059
https://static.viaaurea.eu/t/am/documents/05/4505.jpg/o-fm:webp|w:360|h:360|q:80/s-4f60d1cad596?_ts=1761795059
https://static.viaaurea.eu/t/am/documents/06/4506.jpg/o-fm:webp|w:360|h:360|q:80/s-cb5f6c68902d?_ts=1761795059
https://static.viaaurea.eu/t/am/documents/07/4507.jpg/o-fm:webp|w:360|h:360|q:80/s-30b64f937910?_ts=1761795059
https://static.viaaurea.eu/t/am/documents/08/4508.jpg/o-fm:webp|w:360|h:360|q:80/s-853d13def99a?_ts=1761795059
více fotografií (8)