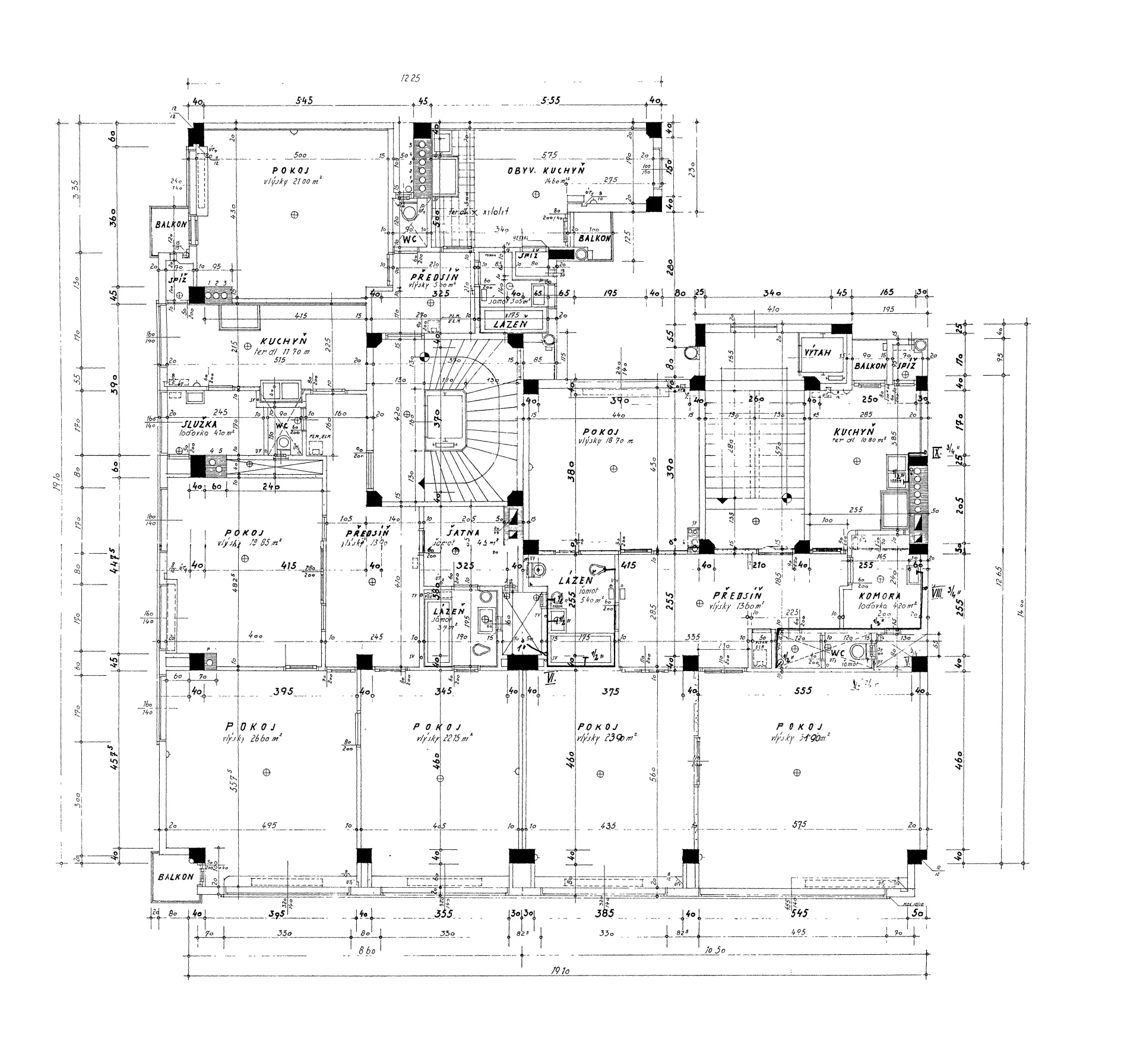
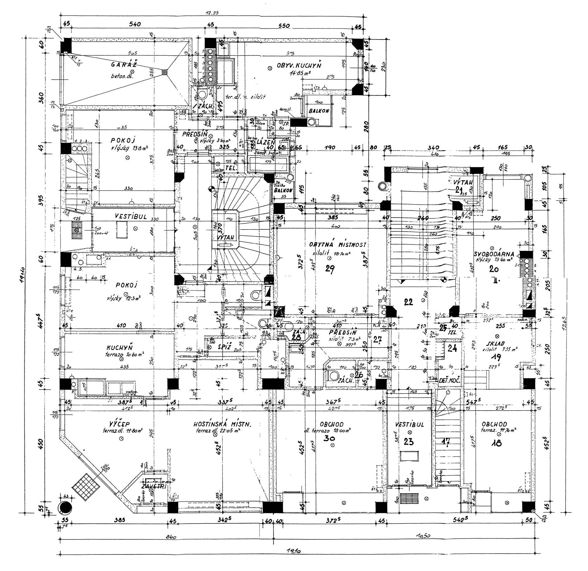
Apartment building
https://static.viaaurea.eu/t/am/documents/28/4728.jpg/o-fm:webp|w:360|h:360|q:80/s-3d1e48a420f9?_ts=1761795062
https://static.viaaurea.eu/t/am/documents/30/4730.jpg/o-fm:webp|w:360|h:360|q:80/s-a0edef149ead?_ts=1761795062
https://static.viaaurea.eu/t/am/documents/31/4731.jpg/o-fm:webp|w:360|h:360|q:80/s-46d0cd37ff76?_ts=1761795062
více fotografií (3)