Apartment buildings

C156

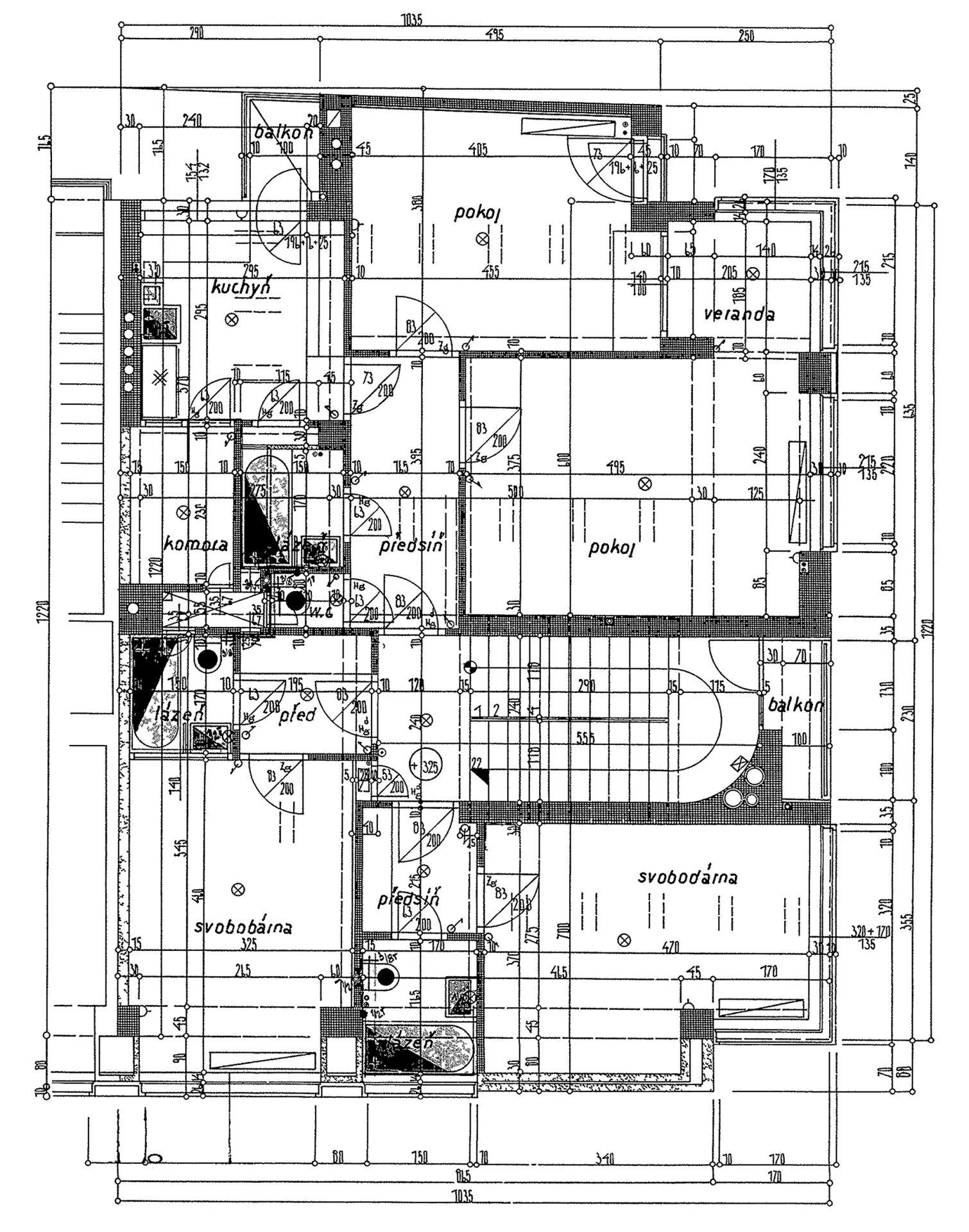
The houses at 5 and 5a in Pellicova Street were designed by Jaroslav Brázda and boast a magnificent urban conception. Their masses skirting the staircase ascending from Pekařská Street accent the perpendicular link between both streets and form a monumental gateway to the Czechoslovak Evangelical Church.

Name
Apartment buildings

Architekti/ky
Václav Dvořák, stavitel, Jaroslav Brázda

Code
C156

Type
Apartment building

Adresa
Pellicova 626, 627 / 5, 5a, Brno

Public transport
Šilingrovo náměstí (TRAM 4, 12)
Šilingrovo náměstí (TRAM 5, 6, 9)


GPS
49.192654,16.602644

Literature
Petr Pelčák, Ivan Wahla. Václav Dvořák, Vilém a Alois Kuba. Brněnští stavitelé 30. let. Brno, Obecní dům Brno, 2002.