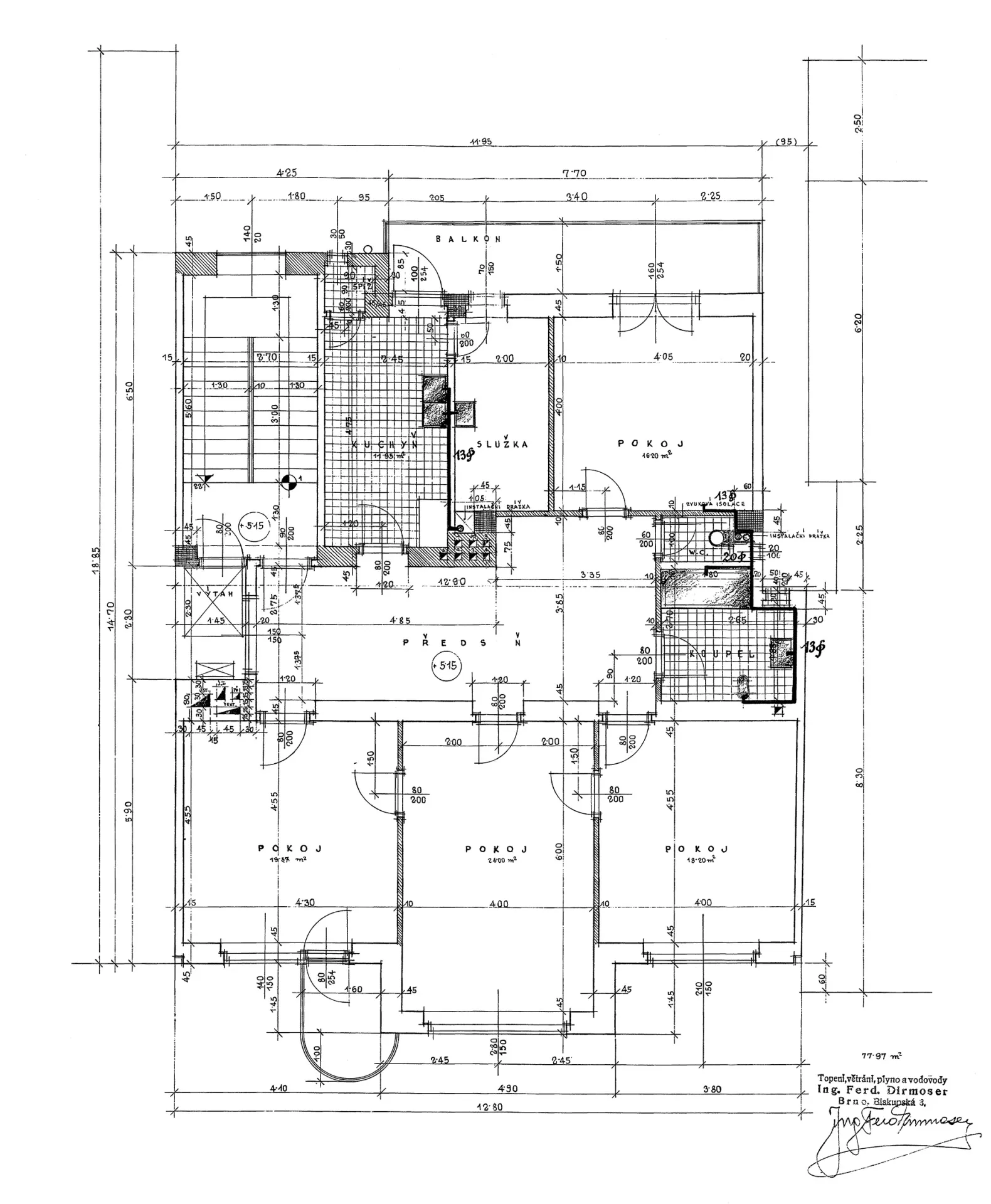
The apartment building in Botanická Street by Otto Eisler represented a higher standard of housing culture in the 1930s. This eight-level building originally featured a single four-room flat with a top quality furnishings, a room for the housemaid and two balconies on each floor. The layouts of the apartments radiated from the central hall, providing access to most of the other rooms. The rounded balcony railings on the street facade are one of the trademarks of Eisler's apartment buildings in Brno. Their function is mostly aesthetic, as they add a dynamic element to the otherwise strictly purist facade segmented only by the central risalit.
Apartment building
Name
Apartment building
Architect
Otto Eisler
Code
C238
Type
Apartment building
Adresa
Botanická 595/6,
Brno
Public transport
Smetanova (TROL 32, 34, 36)
Antonínská (TRAM 1, 6)
GPS
49.203216,16.60436
Literature
Petr Pelčák, Jindřich Škrabal, Ivan Wahla. Otto Eisler. 1893–1968. Brno, Obecní dům Brno, 1998.
Prameny
https://pamatkovykatalog.cz/najemni-dum-14920847