Menu
Brno Architecture Manual
BAM
Cs
De
Trails
Objects
podle abecedy
podle období
podle typu
Autoři/ky
Architekti/ky
Výtvarní umělci/kyně
Literature
Aktuality
About project
About project
Publikace
BAM na Facebooku
Search
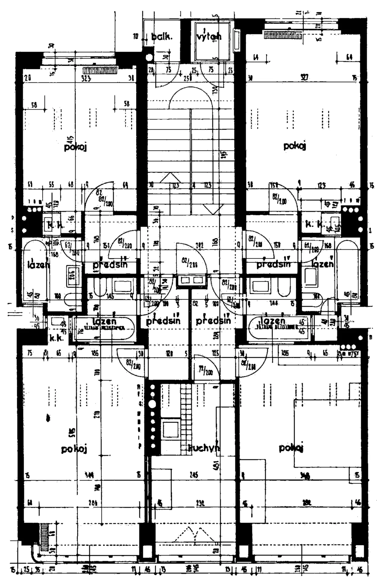
Apartment buildings
C257
https://static.viaaurea.eu/t/am/documents/00/3900.jpg/o-fm:webp|w:360|h:360|q:80/s-309c7a7fe70e?_ts=1761795052
https://static.viaaurea.eu/t/am/documents/01/3901.jpg/o-fm:webp|w:360|h:360|q:80/s-bfe2995a6f0a?_ts=1761795052
více fotografií (2)