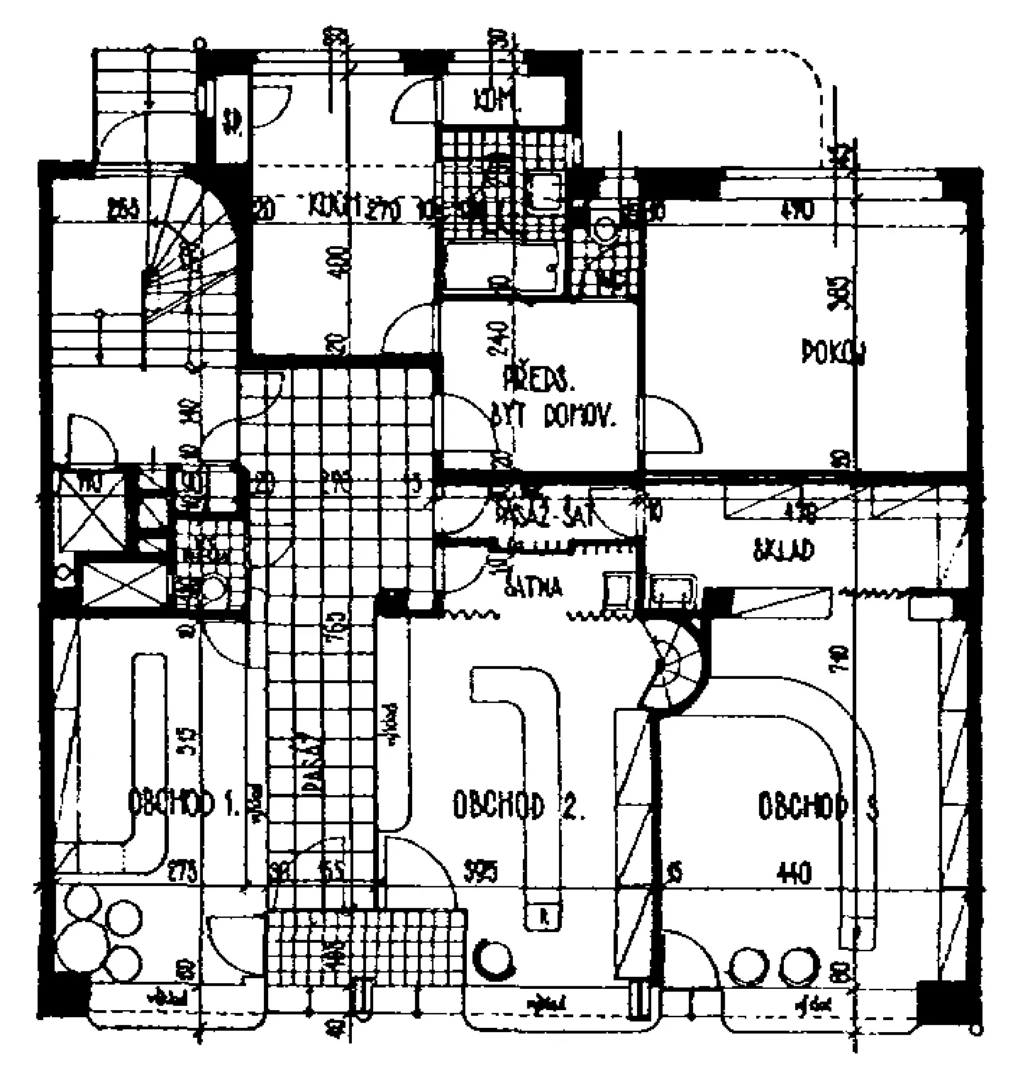
In 1938 architect Endre Steiner prepared a design for an apartment building at No. 2 Třída Kapitána Jaroše Street. However, due perhaps to the architect's Jewish origin, the house was seized by the Gestapo shortly before its completion; the architect was arrested and released on the condition that he complete the building later. Steiner soon managed to escape to Slovakia, where he became a member of the "Working Group," whose aim was to rescue Slovak Jews from the Holocaust. The light cladding of the facade on this seven-level house stands out from the surrounding rows of terraced houses. Fully in the spirit of Steiner's subtle minimalism, the street front is segmented by the window axis on the left and the shallow balconies with rounded railings and ribbon windows on the right. The yard facade is covered by smooth plaster and features axes of windows, a column of round glass blocks and rounded corner balconies. Each floor housed one studio flat and a large, three-room apartment with a central hall and two balconies; the ground floor was occupied by commercial areas. LV
Apartment building
Name
Apartment building
Architect
Endre Steiner
Code
C301
Type
Apartment building
Adresa
třída Kpt. Jaroše 1921/2a,
Brno
Public transport
Moravské náměstí (TRAM 3, 5, 9)
Náměstí 28. října (TRAM 3, 5, 9)
GPS
49.200515,16.61137
Literature
Petr Pelčák, Jan Sapák, Ivan Wahla. Brněnští židovští architekti 1919–1939. Brno, Obecní dům Brno, 2000.
František Kalivoda. Architekt Endre Steiner. Arbeiten aus den Jahren 1934–1939. Bruenn, 1939.
Petr Pelčák. Endre Steiner, poslední žijící meziválečný brněnský architekt. Architekt. 2001. 47, 10. s. 75–77.