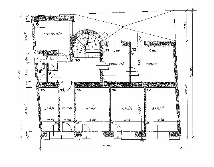
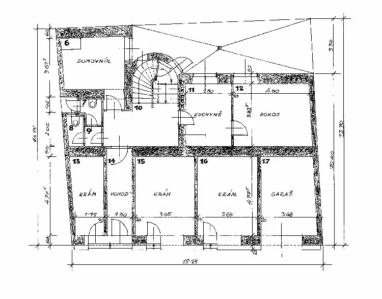
Apartment building with shops
https://static.viaaurea.eu/t/am/documents/35/4635.jpg/o-fm:webp|w:360|h:360|q:80/s-48b4b69d32ed?_ts=1761795061
https://static.viaaurea.eu/t/am/documents/36/4636.jpg/o-fm:webp|w:360|h:360|q:80/s-65b505cdf011?_ts=1761795061
https://static.viaaurea.eu/t/am/documents/37/4637.jpg/o-fm:webp|w:360|h:360|q:80/s-e119185f9614?_ts=1761795061
https://static.viaaurea.eu/t/am/documents/38/4638.jpg/o-fm:webp|w:360|h:360|q:80/s-3a7db3b393c1?_ts=1761795061
více fotografií (4)