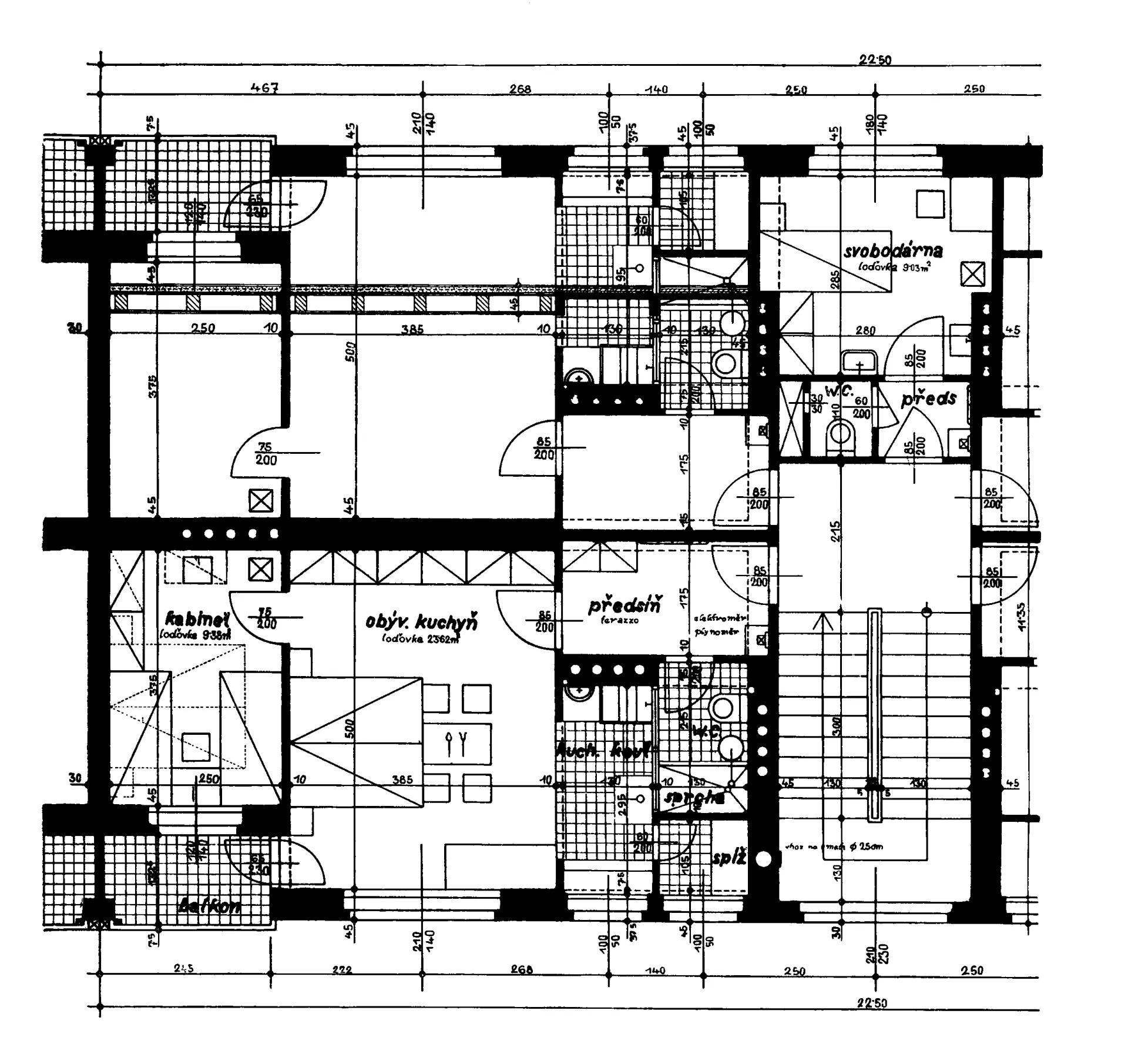
Na základě novely zákona o stavebním ruchu z roku 1936, který umožňoval čerpání státní dotace na stavbu bytů do 34 m², vyhlásilo město Brno stavební akci „1 000 bytů pro chudé“. První etapa proběhla v letech 1936–1937 a jejím výsledkem byla výstavba domů s minimálními byty v ulicích Renneské, Havlenově a Kuldově. Jakýmsi dozvukem tohoto podniku byla v letech 1937–1938 výstavba čtyř domů s minimálními byty na nábřeží řeky Svitavy v ulici Zvěřinově, jejichž návrh společně vypracovali architekti Josef Polášek a Vilém Kuba. Domy svými čtyřmi patry výškově i urbanisticky navazují na starší historizující zástavbu této ulice. Průčelí jednotlivých domovních sekcí jsou symetricky členěna vykrojenými lodžiemi a různě velkými okny obytných a provozních místností. Jednotné pojetí uliční fasády narušuje rohový dům č. 11, který ustupuje šikmo z uliční čáry a jehož fasádě dominuje vertikála schodišťového okna. Tento dům je také na rozdíl od ostatních tří řešen jako pavlačový. Domy obsahují na každém patře jednu svobodárnu a čtyři byty tvořené předsíní, obytnou kuchyní (s lůžky rodičů), kabinetem s balkonem (spaní dětí) a koupelnou se sprchou a toaletou. Ke každému bytu náležela také sklepní kóje. Původní jednotnou bílou barvu fasád dnes nahradily okrové a šedé odstíny a obytná kapacita budov byla ještě navýšena půdními vestavbami. Již za minulého režimu došlo k výměně původních oken, v posledních letech zmizely i další původní architektonické detaily, včetně schodišťového okna domu č. 11. LV
Nájemní domy pro chudé města Brna
Název
Nájemní domy pro chudé města Brna
Datace
1937 – 1938
Architekti/ky
Vilém Kuba,
Josef Polášek
Kód
C354
Typ
Bytový dům
Adresa
Zvěřinova 161, 162, 163, 134 / 5, 7, 9, 11,
Brno
MHD
Tržní (BUS 47, 49, 77, 84)
Tržní (BUS 44, 74, 77 / TROL 31, 33)
Masná (TRAM 8, 9, 10)
GPS
49.190577,16.629125
Literatura
Petr Pelčák, Ivan Wahla. Josef Polášek 1899–1946. Brno, Obecní dům Brno, 2004.
Josef Polášek. Domy pro chudé města Brna. Architektura. 1939. I. s. 234–239.