Villas

C035
více fotografií (18)

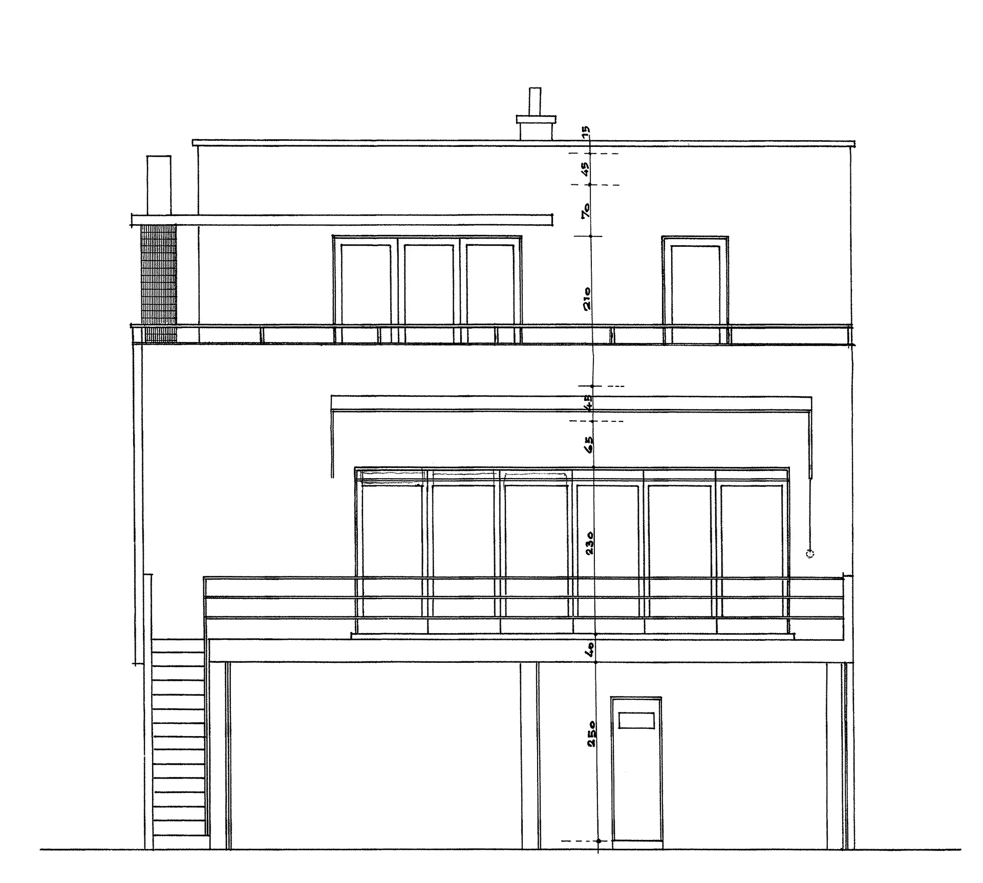
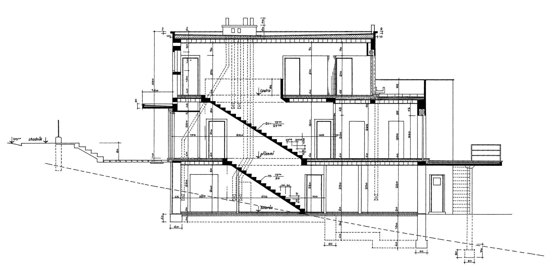
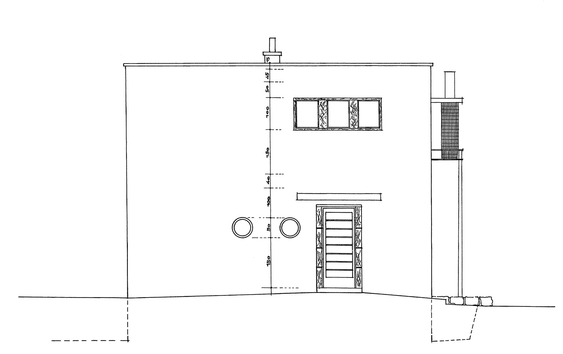
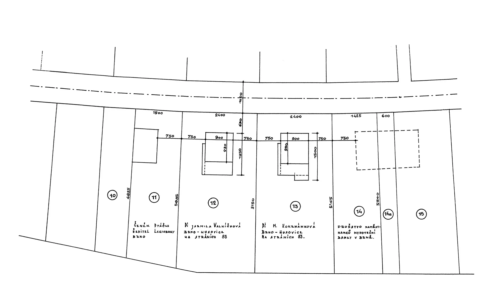
The housing development in the Masaryk Quarter had shifted to its western part near the Wilson Wood by the mid-1930s, which also resulted in the Pod vodojemem colony urban development plan. It was prepared by Jindřich Kumpošt for the Welfare Housing Cooperative of the employees of the Moravian Mortgage and Agricultural Bank. The urban conception of the colony is defined by the sloping terrain and the streets logically copy the contour lines. The individual houses in Rezkova and Kaplanova streets were built according to designs by Evžen Škarda, František Kalivoda, Jiří Kroha, Mojmír Kyselka, Jaroslav Grunt and Jindřich Kumpošt.

Name
Villas

Architekti/ky
Mojmír Kyselka, Evžen Škarda

Code
C035

Type
Villa, family house

Adresa
Rezkova 438 / 35, 37, Brno

Public transport
Barvičova (TROL 35, 39)
Marie Pujmanové (TROL 38)


GPS
49.200604,16.573535

Literature
Petr Pelčák, Ivan Wahla. Jindřich Kumpošt 1891–1968. Brno, Obecní dům Brno, 2006.
Petr Pelčák, Ivan Wahla. Generace 1901–1910. První absolventi české školy architektury v Brně 1925–1940. Brno, Obecní dům Brno, 2000.